Villa bifamiliare in Vendita a Ispra, 265'000€, 205 m²
        
    
        
    
        
    
    
        Villa bifamiliare di testa libera su tre lati e sviluppata su due piani oltre ad interrato.
Edificata negli anni '80 dall'attuale proprietario con uno stile rustico e spazi generosi.
L'abitazione è così divisa:
- Piano Terra: ingresso, soggiorno con camino, cucina a vista, angolo bar, una camera, bagno e porticato coperto con zona barbeque.
- Piano Primo: soppalco di 18 mq. che sovrasta la zona giorno, camera matrimoniale con armadio a muro e balcone, 2 locali ripostiglio comunicanti, grande bagno con doccia e vasca a filo pavimento.
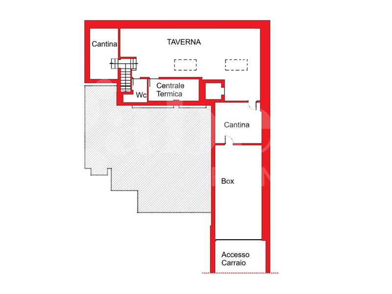
- Piano Interrato: grande taverna con forno, bagno/caldaia, cantina ed autorimessa.
Completa la proprietà un'area esclusiva sui tre lati dell'abitazione ed ingressi pedonale e carraio sono indipendenti.
La villa è dotata di serramenti in legno antisfondamento. 
la casa si presenta in buone condizioni generali; lo stile rustico, la splendida scala in legno a vista, i comodi spazi conviviali interni ed esterni rendono questa casa un'ottima alternativa adatta a chi ama circondarsi di amici.
	
    
    
    
        
        
            Condizioni economiche
            
                Contratto: Vendita
            
            
                Prezzo: 265'000€
            
            
                
                    Arredato: No
                
            
                
                    Libero: Si
                
            
         
        
            Informazioni principali
            
                Tipologia: Villa bifamiliare
            
            
                Città: Ispra
            
            
                
                    Superficie: 205 m²
                
            
                
                    N° locali: 3
                
            
                
                    N° bagni: 2
                
            
                
                    N° Camere: 2
                
            
                
                    Piano: Su più livelli
                
            
                
                    Box: Doppio
                
            
                
                    Cucina: Abitabile
                
            
                
                    Giardino: Privato
                
            
         
        
            Efficenza energetica
            
                Classe energetica: 
            
            
                
                    Ipe: 0.00 kwm2
                
            
                
                    Anno di costruzione: 1980
                
            
                
                    Riscaldamento: autonomo 
                
            
		 
        
                
                    Caratteristiche
                    
                        
                            Cantina: Si
                        
                    
                        
                            Videocitofono: Si
                        
                    
                 
            
            
                Dati inserzione
                
                    ID Offrocasa.com: 10757482
                
                
                
                    Data inserimento: 13/06/2025
                
                
                    
                        Rif. Agenzia: Cod. rif 3242260VRG
                    
                
             
        
	 
    
    
        
Villa bifamiliare in Vendita a Ispra, 265'000€, 205 m²