Trilocale in Vendita a Cerro Maggiore, 334'800€, 142 m²

Locali: 3
Bagni: 2
Camere: 2
Piano: Terra
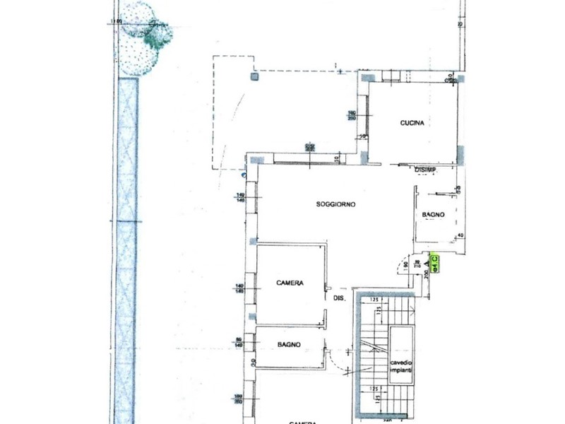
Cerro Maggiore - CLASSE ENERGETICA A4: in prossimità dell'ingresso autostradale di Legnano, in contesto tranquillo e residenziale, proponiamo in vendita in piccola palazzina sviluppata su 3 piani fuori terra oltre piano interrato destinato a box e cantine, tre locali di nuova costruzione, con spazi esterni e possibilità di personalizzazione. Ingresso nel luminoso soggiorno, cucina separata e abitabile, ampie camere da letto e doppi servizi. Tutte le stanze affacciano sul giardino di proprietà. Possibilità di modifiche interne e realizzazione della terza camera da letto. Possibilità di appartamento speculare al primo piano servito da ampio terrazzo. L'appartamento è caratterizzato da materiali idonei all'isolamento termico ed acustico, sia interno che esterno; riscaldamento/raffrescamento a pavimento con impianto geotermico; impianto di deumidificazione; predisposizione impianto antintrusione; infissi in PVC doppio vetro con gas, zanzariere e avvolgibili in alluminio coibentato elettriche; portoncino blindato; videocitofono; vasta scelta di rivestimenti e pavimenti. Possibilità di boxes auto valorizzato a parte. Cantine. Possibilità di accollo mutuo. Fidejussioni assicurative sugli acconti versati. Consegna settembre 2025 L'indirizzo inserito in pubblicità è indicativo.

Condizioni economiche

Contratto: Vendita
Prezzo: 334'800€
Arredato: No
Spese condominiali: 117€
Libero: Si

Informazioni principali

Tipologia: Trilocale
Città: Cerro Maggiore
Superficie: 142 m²
N° locali: 3
N° bagni: 2
N° Camere: 2
Piano: Terra
Box: Singolo
Cucina: Abitabile
Giardino: Comune

Efficenza energetica

Classe energetica: 2015-A4
Ipe: 4.32 kwm2
Anno di costruzione: 2025
Riscaldamento: centralizzato

Caratteristiche

Cantina: Si
Ascensore: Si
Videocitofono: Si

Dati inserzione

ID Offrocasa.com: 10756244
Data inserimento: 11/06/2025
Rif. Agenzia: Cod. rif 3241481VRG
Rif. Agenzia Cod. rif 3241481VRG

Gabetti

Corso Magenta 64 - Legnano (Milano)
0331/1223530
Richiedi Info dal form:
Accetto l'Informativa Privacy


Gabetti

Corso Magenta 64 - Legnano (Milano)

Trilocale in Vendita a Cerro Maggiore, 334'800€, 142 m²

Chiama
Contatta