Casa Semi Indipendente in Vendita a Bolzano Novarese, 36'929€, 165 m²

Locali: 6
Camere: 2
Piano: s
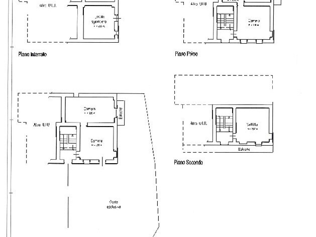
Piena proprietà per la quota di 1000/1000 di porzione di fabbricato terra cielo da ristrutturare con terreno pertinenziale, avente accesso carraio e pedonale tramite corte di altra proprietà, gravata da servitù di passaggio a favore del fabbricato esecutato. - Il Prezzo visualizzato è la Base d'Asta in quanto l’immobile è oggetto di esecuzione immobiliare venduto tramite Asta Giudiziaria. - L'immobile aggiudicato, viene venduto libero e sgombro da persone cose ed ipoteche nello stato di fatto e di diritto in cui si trova. - Non rappresentiamo il Tribunale, ma lavoriamo nell'esclusivo interesse del potenziale acquirente per garantire un acquisto sicuro. - I consulenti di ASTE ITALIA ti assisteranno in tutte le attività dell'iter giudiziario dalla visita dell'immobile fino alla consegna chiavi. - Contatta il nostro Servizio Clienti , i nostri operatori sono a disposizione per chiarire i molteplici dubbi per partecipare alle ASTE.

Condizioni economiche

Contratto: Vendita
Prezzo: 36'929€
Arredato: No

Informazioni principali

Tipologia: Casa Semi Indipendente
Città: Bolzano Novarese
Superficie: 165 m²
N° locali: 6
N° Camere: 2
Piano: s
N° balconi: 3
Cucina: Abitabile
Giardino: Si

Efficenza energetica

Classe energetica: G
Anno di costruzione: 0
Condizioni stabile: Da ristrutturare
Riscaldamento: Autonomo

Caratteristiche

Cantina: Si

Dati inserzione

ID Offrocasa.com: 10754234
Data inserimento: 07/06/2025
Rif. Agenzia: NO3/23LU-0506-25-1200
Rif. Agenzia NO3/23LU-0506-25-1200

Domy Online S.r.l.

Via San Lorenzo 5/41 - Genova
010.8935187
Richiedi Info dal form:
Accetto l'Informativa Privacy


Domy Online S.r.l.

Via San Lorenzo 5/41 - Genova

Casa Semi Indipendente in Vendita a Bolzano Novarese, 36'929€, 165 m²

Chiama
Contatta