Appartamento in Vendita a Napoli, 510'000€, 135 m²

Locali: 5
Bagni: 2
Camere: 3
Piano: 4°
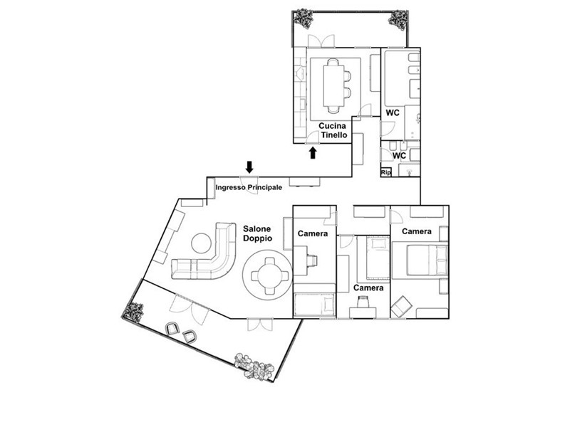
La casa spaziosa e luminosa che aspettavi, in parco signorile con posto auto All'interno di un parco residenziale riservato e ben curato, dotato di servizio di portineria attivo h24, sistema di videosorveglianza, spazi verdi e area giochi per bambini, proponiamo in vendita un appartamento di ampia metratura, situato al 4° piano (non ultimo) di uno stabile signorile. L'immobile si distingue per la sua ottima luminosità, la vista aperta e la doppia esposizione, con due balconi terrazzati in posizione parallela e opposta: uno sul salone, e l'altro lato cucina, entrambi con esposizione su aree verdi. La superficie interna è distribuita in modo razionale e confortevole: Doppio ingresso, salone doppio con uscita sul balcone principale, tre camere da letto, ampia cucina con tinello e secondo balcone, 2 bagni, comodo ripostiglio L'appartamento è climatizzato ed è inserito in un contesto tranquillo, ideale per famiglie o per chi cerca una casa spaziosa e luminosa, in una zona residenziale ma ben servita. Sono in corso i lavori di ristrutturazione delle facciate e dei balconi del parco, già interamente pagati. Posto auto fisso e posto moto all'interno del parco.

Condizioni economiche

Contratto: Vendita
Prezzo: 510'000€
Arredato: No
Spese condominiali: 208€
Libero: Si

Informazioni principali

Tipologia: Appartamento
Città: Napoli
Superficie: 135 m²
N° locali: 5
N° bagni: 2
N° Camere: 3
Piano:
Posto auto: Si
Cucina: Abitabile
Giardino: Comune

Efficenza energetica

Classe energetica: 2015-G
Ipe: 176.00 kwm2
Climatizzatore: Si
Anno di costruzione: 1959

Caratteristiche

Ascensore: Si

Dati inserzione

ID Offrocasa.com: 10752877
Data inserimento: 06/06/2025
Rif. Agenzia: Cod. rif 3240390VRG
Rif. Agenzia Cod. rif 3240390VRG

Grimaldi Immobiliare

Via Cilea 143 - Napoli
081/5601333
Richiedi Info dal form:
Accetto l'Informativa Privacy


Condividi

Grimaldi Immobiliare

Via Cilea 143 - Napoli

Appartamento in Vendita a Napoli, 510'000€, 135 m²

Chiama
Contatta