Capannone in Vendita a Vaiano, 79'000€, 60 m²

Locali: 3
Piano: t
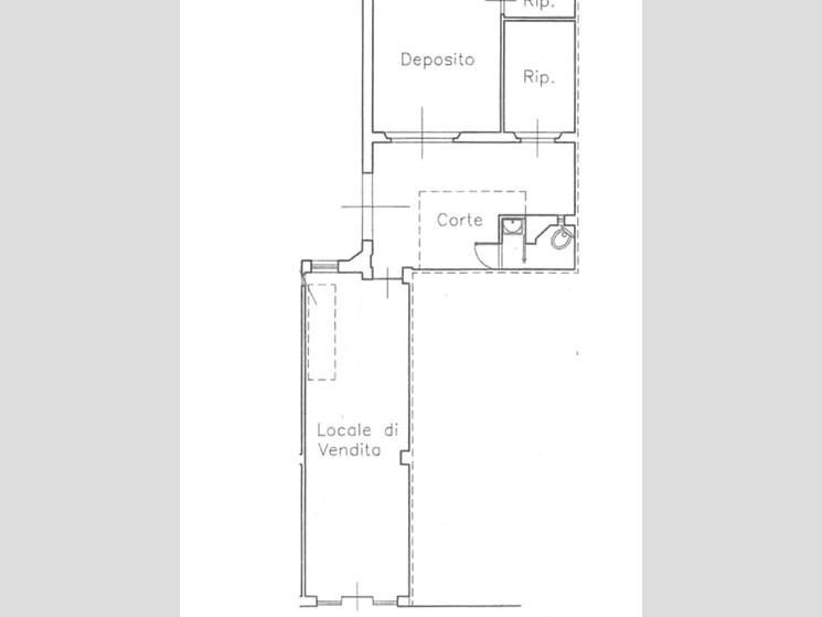
Fondo commerciale posto in strada centrale di Vaiano, con spazio esterno privato e tre locali deposito. L'immobile gode di un ottimo affaccio sulla strada ed una superficie di vendita di circa mq. 35 oltre a deposito interrato, collegato internamente e sul retro ampia resede privata con servizio e ulteriori due depositi. Possibilità di affitto. Per motivi di privacy l'indirizzo non corrisponde. Il nostro ufficio è aperto dal lunedì al venerdì dalle 9,00 alle 13,00 e dalle 15,00 alle 19,00. Il sabato mattina su appuntamento. Per ulteriori informazioni: 0574/946052.

Condizioni economiche

Contratto: Vendita
Prezzo: 79'000€
Arredato: No

Informazioni principali

Tipologia: Capannone
Città: Vaiano
Vicinanze: Centrale
Superficie: 60 m²
N° locali: 3
Piano: t

Efficenza energetica

Classe energetica: VA
Anno di costruzione: 0
Condizioni stabile: Ottimo

Dati inserzione

ID Offrocasa.com: 10750538
Data inserimento: 04/06/2025
Rif. Agenzia: 212
Rif. Agenzia 212

Spazio Casa Studio Immobiliare s.a.s.

Via Borgonuovo, 4/B - Vaiano (PO)
0574.946052
Richiedi Info dal form:
Accetto l'Informativa Privacy


Spazio Casa Studio Immobiliare s.a.s.

Via Borgonuovo, 4/B - Vaiano (PO)

Capannone in Vendita a Vaiano, 79'000€, 60 m²

Chiama
Contatta