Appartamento in Vendita a Monza, 649'000€, 213 m², con Box

Locali: 5
Bagni: 3
Camere: 3
Piano: 4°
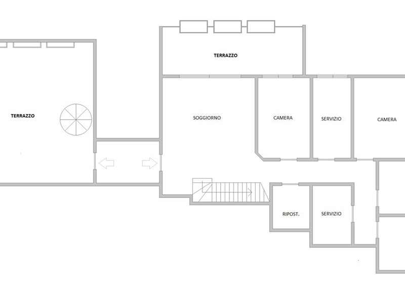
Rif. 24/25 - Monza-Triante, in contesto signorile, proponiamo elegantissimo e luminoso attico di 213 mq disposto su due livelli con doppio ingresso e così composto: 5° ed ultimo piano con ingresso, ampio salone con camino e due terrazzi di 14 mq e 9 mq, cucina abitabile con terrazzo di 20 mq, servizio e ripostiglio; Al livello inferiore, troviamo ingresso, un ulteriore soggiorno con terrazzo di 14 mq, 3 camere di cui una con balcone di 6 mq ca., cabina armadio, studio e 2 servizi. A completare la soluzione, al 4° piano troviamo un ulteriore magnifico terrazzo di 42 mq (con ripostiglio esterno di 8 mq) collegato da scala esterna al livello superiore, un altro terrazzo di 14 mq ed un balcone. Cantina. Possibilità box doppio in larghezza (24 mq) ? 750.000, 00. Tel. 039.5960110

Condizioni economiche

Contratto: Vendita
Prezzo: 649'000€
Spese condominiali: 430€
Libero: Si

Informazioni principali

Tipologia: Appartamento
Città: Monza
Superficie: 213 m²
N° locali: 5
N° bagni: 3
N° Camere: 3
Piano:
Box: Si
Cucina: Abitabile
Giardino: Comune

Efficenza energetica

Classe energetica: 2015-D
Ipe: 150.17 kwm2
Climatizzatore: Si
Anno di costruzione: 2000
Riscaldamento: autonomo

Caratteristiche

Cantina: Si
Ascensore: Si

Dati inserzione

ID Offrocasa.com: 10750325
Data inserimento: 04/06/2025
Rif. Agenzia: 24/25VRG
Rif. Agenzia 24/25VRG

Grimaldi Immobiliare

Via Alessandro Manzoni 16 - Monza (Monza-Brianza)
039/5960110
Richiedi Info dal form:
Accetto l'Informativa Privacy


Condividi

Grimaldi Immobiliare

Via Alessandro Manzoni 16 - Monza (Monza-Brianza)

Appartamento in Vendita a Monza, 649'000€, 213 m², con Box

Chiama
Contatta