Villa in Vendita a Roma, 860'000€, 234 m²

Locali: 3
Bagni: 3
Camere: 3
Piano: Su più livelli
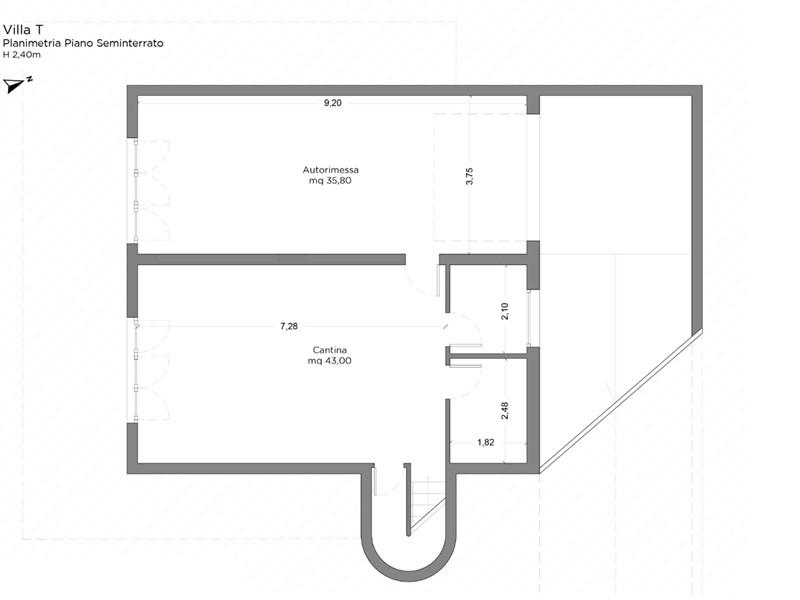
IL CANTIERE E' IN FASE DI DEFINIZIONE . LE PRIME CONSEGNE A GENNAIO 2026. A partire da Euro 860.000,00 superficie commerciale 183 mq scopri questa splendida soluzione abitativa di nuova costruzione immersa nel verde della Valle dei Casali. con un giardino privato di circa 400mq, due posti auto scoperti e l'utilizzo esclusivo di un orto urbano di circa 80 mq, Questa abitazione moderna si sviluppa su tre livelli, offrendo spazio e comfort per tutta la famiglia. L'immobile è così composto: - Al Piano Rialzato ingresso, zona giorno con ampie vetrate panoramiche con accesso alla terrazza che si sviluppa su tre lati, cucina a vista, disimpegno zona notte con vani per armadi a muro, camera matrimoniale, camera singola e bagno finestrato con box doccia doppio; - Al Piano primo: una spaziosa camera con bagno ad uso esclusivo ed una grande terrazza di circa 40mq e tetto giardino per goderti momenti di relax; - Al Piano seminterrato: sala hobby, bagno finestrato con box doccia, locale tecnico sottoscala e garage doppio con colonnina di ricarica per la tua auto elettrica. Vuoi sapere le caratteristiche tecniche e costruttive di questo immobile? Classe energetica A4, Nzeb (ovvero edificio caratterizzato da elevata efficienza energetica con consumi bassissimi) per un'abitazione efficiente e sostenibile - impianto fotovoltaico da 6 KW e sistema di accumulo da 12 KW, abitazione completamente domotizzata. Infissi in legno di rovere con doppi vetri, serrande motorizzate in alluminio coibentato, riscaldamento e raffrescamento ad aria, pavimenti e rivestimenti interni di alta qualità: Marazzi, Caesar, Imola, e Ceramica Rondine. Controtelai Alpac coibentati con VMC integrata (ventilazione meccanica controllata) , porte blindate Dierre, rubinetterie Hansgrohe e sanitari Vitra: eleganza e funzionalità in ogni dettaglio - recupero acque meteoriche per l'irrigazione degli spazi verdi: un gesto per l'ambiente - rivestimento esterno in cortina: un design moderno e duraturo, il comprensorio comprenderà un'ulteriore spazio di circa 1500 mq dove verranno realizzati dei posti auto scoperti di cui ogni abitazione ne avrà a disposizione due, un'area giochi condivisa e degli orti urbani di circa 80mq ad utilizzo esclusivo per ogni villa, con casotto in legno per gli attrezzi, recinsione e punto acqua servito da pozzo, per un'esperienza di vita all'aperto. Non perdere l'opportunità di vivere in una casa che combina confort, sicurezza e sostenibilità! Contattaci per maggiori informazioni e per prenotare una visita. La tua nuova vita inizia qui, nel cuore della natura, a pochi chilometri dal centro di Roma. La posizione è strategica vicina a scuole primarie, secondarie e campus universitari, farmacie e altre attività commerciali, rendendo la vita quotidiana comoda e piacevole. NELLA GALLERIA IMMAGINI E' INSERITA UNA FOTO CHE RAPPRESENTA I PRINCIPALI COLLEGAMENTI DELLE LINEE DEGLI AUTOBUS.L'acquisto dell'immobile usufruisce delle detrazioni fiscali secondo quanto previsto dalla Art16-bis del Dpr n.917/86 e legge n.234 del 30 dicembre 2021,che prevede la detrazione da parte dell'acquirente del 50% delle spese sostenute per l'acquisto fino al 31/12/2025, con il limite massimo di spesa agevolabile pari a 96.000,00 Euro e quindi una detrazione dall'IRPEF pari a 48.000,00 Euro da ripartire in 10 quote annuali di pari importo. Per ulteriori informazioni o per fissare un appuntamento si prega di contattare i seguenti numeri: 06.27.53.829-392.08.76.185. Questa descrizione ha valore puramente indicativo e non costituisce elemento contrattuale. IL PROGETTO COMPLETO ED IL CAPITOLATO SONO DISPONIBILI AL SEGUENTE LINK: https://www.simotti.org/lavori/vicolo-del-conte-70/

Condizioni economiche

Contratto: Vendita
Prezzo: 860'000€
Arredato: No
Libero: Si

Informazioni principali

Tipologia: Villa
Città: Roma
Superficie: 234 m²
N° locali: 3
N° bagni: 3
N° Camere: 3
Piano: Su più livelli
Box: Doppio
Cucina: Abitabile
Giardino: Comune

Efficenza energetica

Classe energetica: 2015-A4
Ipe: 3.80 kwm2
Climatizzatore: Si
Anno di costruzione: 2024
Riscaldamento: autonomo

Caratteristiche

Videocitofono: Si

Dati inserzione

ID Offrocasa.com: 10748794
Data inserimento: 31/05/2025
Rif. Agenzia: Cod. rif VILLATVRG
Rif. Agenzia Cod. rif VILLATVRG

Gabetti

Via dei Feltreschi 21 - Roma
06.47549473
Richiedi Info dal form:
Accetto l'Informativa Privacy


Gabetti

Via dei Feltreschi 21 - Roma

Villa in Vendita a Roma, 860'000€, 234 m²

Chiama
Contatta