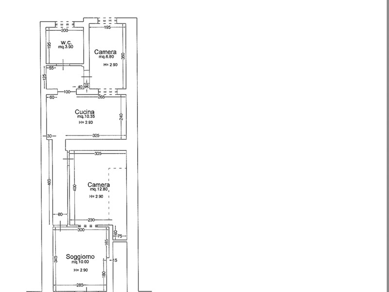
Trilocale in Vendita a Milazzo, 80'000€, 57 m²

Locali: 3
Bagni: 1
Camere: 2
Piano: Terra
#prof361 Via Enrico Cosenz, 75 - Milazzo (ME) Cerchi un rifugio accogliente vicino al mare o un investimento intelligente in una zona strategica? Questa deliziosa casetta con accesso indipendente al piano terra, di circa 57 mq, è la soluzione ideale per chi desidera vivere o trascorrere le vacanze in totale relax, con tutti i comfort a portata di mano. Situata in Via Enrico Cosenz, in una zona servitissima dove tutto è raggiungibile comodamente a piedi: supermercati, negozi, ristoranti, trasporti? e soprattutto il mare, a soli pochi passi. L' immobile è così suddiviso: ingresso su zona giorno luminosa, camera da letto, piccola cameretta, cucina funzionale e un bagno. L'abitazione è perfetta come appoggio per le vacanze estive, ma anche come investimento a reddito grazie alla forte richiesta turistica della zona. Gli ambienti sono ben distribuiti e sfruttabili al massimo, con spazi accoglienti e facili da gestire. Una vera oasi di tranquillità vicino al mare, dove potrai goderti il suono delle onde e il profumo della brezza marina ogni giorno, senza rinunciare alla comodità dei servizi urbani. Contattaci per maggiori informazioni o per fissare una visita:un consulente dedicato sarà a tua completa disposizione! Vieni a trovarci presso la nostra agenzia in Via Marina Garibaldi, 61 - Milazzo (ME) Tel. & Whatsapp : 0909031774

Condizioni economiche

Contratto: Vendita
Prezzo: 80'000€

Informazioni principali

Tipologia: Trilocale
Città: Milazzo
Superficie: 57 m²
N° locali: 3
N° bagni: 1
N° Camere: 2
Piano: Terra
Cucina: Angolo Cottura

Efficenza energetica

Classe energetica:
Climatizzatore: Si
Anno di costruzione: 0

Dati inserzione

ID Offrocasa.com: 10744752
Data inserimento: 27/05/2025
Rif. Agenzia: #prof361VRG
Rif. Agenzia #prof361VRG

Professionecasa

Prossima Apertura - Milazzo (Messina)
0909031774
Richiedi Info dal form:
Accetto l'Informativa Privacy


Professionecasa

Prossima Apertura - Milazzo (Messina)

Trilocale in Vendita a Milazzo, 80'000€, 57 m²

Chiama
Contatta