Appartamento in Vendita a Ancona, 88'000€, 100 m²
        
    
        
    
        
    
    
        CONTIGROUP info whatsapp 393 9485092
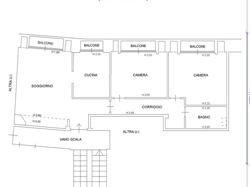
proponiamo nella zona di Via Martiri della resistenza ottimo appartamento di mq 100 dotato di camino, da rimodernare internamente
Ideale anche uso investimento
	
    
    
    
        
        
            Condizioni economiche
            
                Contratto: Vendita
            
            
                Prezzo: 88'000€
            
            
                
                    Arredato: No
                
            
                
                    Spese condominiali: 67€
                
            
         
        
            Informazioni principali
            
                Tipologia: Appartamento
            
            
                Città: Ancona
            
            
                
                    Vicinanze: Semicentrale
                
            
                
                    Superficie: 100 m²
                
            
                
                    N° locali: 5
                
            
                
                    N° Camere: 2
                
            
                
                    Piano: 5
                
            
         
        
            Efficenza energetica
            
                Classe energetica: VA
            
            
                
                    Anno di costruzione: 0
                
            
                
                    Condizioni stabile: Da ristrutturare
                
            
		 
        
            
                Dati inserzione
                
                    ID Offrocasa.com: 10741960
                
                
                
                    Data inserimento: 26/05/2025
                
                
                    
                        Rif. Agenzia: QCM25
                    
                
             
        
	 
    
    
        
Appartamento in Vendita a Ancona, 88'000€, 100 m²