Casa Semi Indipendente in Vendita a Cerea, 315'000€, 152 m², con Box

Locali: 4
Camere: 3
Piano: t
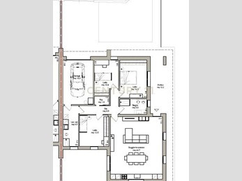
Villa Bifamiliare in Classe Energetica A4 a Cerea (Frazione di Asparetto) In una tranquilla zona residenziale della frazione di Asparetto di Cerea, proponiamo in vendita una splendida porzione di villa bifamiliare di nuova realizzazione, caratterizzata da elevate prestazioni energetiche e comfort abitativo. Dettagli dell'immobile: - Tipologia: Porzione di villa bifamiliare - Classe energetica: A4 - Superficie totale: Circa 555 mq di terreno di proprietà - Piano: Sviluppo interamente al piano terra Composizione degli spazi interni: - Ingresso/portico accogliente - Soggiorno/cucina open-space luminoso - Una camera matrimoniale - Due camere singole - Due bagni - Ripostiglio - Garage privato Caratteristiche costruttive: La villa è stata progettata e realizzata nel rispetto delle normative vigenti, con particolare attenzione alle costruzioni in zona sismica 3. Gli elementi strutturali comprendono: - Fondazioni a platea in calcestruzzo armato - Struttura portante in elevazione con travi e pilastri in conglomerato cementizio armato - Tamponamenti in laterizio alveolare - Solai piani in latero cemento - Pareti divisorie interne in forati di spessore adeguato Coibentazioni e impermeabilizzazioni: - Isolamento termico delle pareti esterne con sistema a cappotto EPS con grafite sp. 120mm - Isolamento termico del tetto ventilato inclinato in legno con pacchetto isolante in lana di roccia sp. 200mm. - Isolamento de tetto piano in latero-cemento con pacchetto isolante in polistirene estruso sp. 160mm. Ed impermeabilizzato con doppia guaina - canali di gronda in alluminio verniciato Finiture interne e pavimentazioni: - Pavimenti interni in gres porcellanato di prima scelta - Rivestimenti in gres per bagno, lavanderia e cucina - Soglie e davanzali in pietra di Trani bianco - Intonaci interni lavabili Serramenti: - Finestre e porte finestre in PVC con taglio termico (sistema in monoblocco) - Portone del garage sezionale coibentato - Porte interne tamburate con finiture di qualità Impianti: - Riscaldamento a pavimento con pompa di calore autonoma - Predisposizione per aria condizionata - Predisposizione per la ventilazione meccanizzata VMC - Impianto elettrico conforme alle normative vigenti, con pannelli fotovoltaici da circa 8,0 kW Questa villa rappresenta un’opportunità unica per chi cerca una soluzione moderna e confortevole in una posizione strategica. Per maggiori informazioni, non esiti a contattarci.

Condizioni economiche

Contratto: Vendita
Prezzo: 315'000€
Arredato: No

Informazioni principali

Tipologia: Casa Semi Indipendente
Città: Cerea
Vicinanze: Periferia
Superficie: 152 m²
N° locali: 4
N° Camere: 3
Piano: t
Box: Si
Posto auto: Si
Cucina: Abitabile
Giardino: Si

Efficenza energetica

Classe energetica: A4
Anno di costruzione: 2025
Condizioni stabile: In costruzione
Riscaldamento: Autonomo

Dati inserzione

ID Offrocasa.com: 10741341
Data inserimento: 26/05/2025
Rif. Agenzia: MV003325
Rif. Agenzia MV003325

CENTURY 21 Top Elegance 2

Via Mantova, 5 - Cerea (Verona)
044.2081620
Richiedi Info dal form:
Accetto l'Informativa Privacy


CENTURY 21 Top Elegance 2

Via Mantova, 5 - Cerea (Verona)

Casa Semi Indipendente in Vendita a Cerea, 315'000€, 152 m², con Box

Chiama
Contatta