Attività commerciale in Vendita a Rimini, 680'000€, 1000 m², arredato

Camere: 30
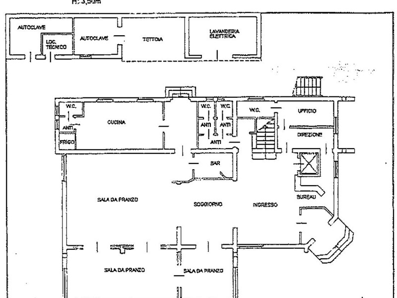
RIMINI MARE – HOTEL: Proponiamo un’interessante opportunità commerciale nella richiestissima zona di MARINA CENTRO, a pochi passi dalla spiaggia. Si tratta di un hotel con 30 camere. La struttura offre spazi accoglienti e ben organizzati, tra cui una cucina attrezzata, un’ampia hall, una sala spaziosa con una veranda separabile. Se cerchi una soluzione da RIAMMODERNARE e preparare per l'imminente estate alle porte E' L'ALBERGO CHE FA PER TE ! Rif. 1192 € 680.000.

Condizioni economiche

Contratto: Vendita
Prezzo: 680'000€
Arredato: Si

Informazioni principali

Tipologia: Attività commerciale
Città: Rimini
Superficie: 1000 m²
N° Camere: 30

Efficenza energetica

Classe energetica: C
Ipe: 259.4 KWh/m2a
Anno di costruzione: 1955
Condizioni stabile: Da ristrutturare

Caratteristiche

Ascensore: Si

Dati inserzione

ID Offrocasa.com: 10740549
Data inserimento: 26/05/2025
Rif. Agenzia: 1192
Rif. Agenzia 1192

AD Case s.r.l.

Via Saffi 88 - Rimini (RN)
.
Richiedi Info dal form:
Accetto l'Informativa Privacy


AD Case s.r.l.

Via Saffi 88 - Rimini (RN)

Attività commerciale in Vendita a Rimini, 680'000€, 1000 m², arredato

Chiama
Contatta