Immobile commerciale in Vendita a Cesena, zona Centro cittÃ, 94'500€, 113 m²

Locali: 2
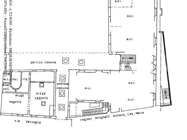
Vendesi in Asta a Cesena, in zona Centro Storico, Negozio al piano terra consistente in due grandi locali per la vendita (comunicanti tramite ampia apertura ad arco), un retro, ripostiglio, un antibagno e un bagno con soppalco. Per Info ed appuntamenti: 800129769 oppure 3519120169. Possibilità di Mutuo prima casa al 100% in 20 anni. www.alquadrato.net - Servizio Aste.

Condizioni economiche

Contratto: Vendita
Prezzo: 94'500€
Arredato: No

Informazioni principali

Tipologia: Immobile commerciale
Città: Cesena
Zona: Centro cittÃ
Superficie: 113 m²
N° locali: 2

Efficenza energetica

Classe energetica: VA
Anno di costruzione: 0
Condizioni stabile: Discreto

Dati inserzione

ID Offrocasa.com: 10740121
Data inserimento: 26/05/2025
Rif. Agenzia: 2755
Rif. Agenzia 2755

Consulenti Immobiliari Associati Srl

V.le Guglielmo Oberdan 444 - Cesena (FC)
334.7771349
Richiedi Info dal form:
Accetto l'Informativa Privacy


Consulenti Immobiliari Associati Srl

V.le Guglielmo Oberdan 444 - Cesena (FC)

Immobile commerciale in Vendita a Cesena, zona Centro cittÃ, 94'500€, 113 m²

Chiama
Contatta