Casa Semi Indipendente in Vendita a Fosdinovo, zona Caniparola, 157'000€, 90 m²

Locali: 4
Camere: 2
Piano: t
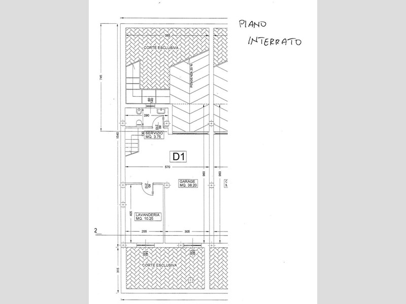
RIF. C-1553 VENDESI A CANIPAROLA IN ZONA SERVITISSIMA, SEMINDIPENDENTE CON OTTIME RIFINITURE , DI RECENTE COSTRUZIONE DI CIRCA 90 MQ DISPOSTA SU 2 LIVELLI, PIANO RIALZATO E SEMI-INTERRATO CON ACCESSO SIA INTERNO CHE ESTERNO INTERNO CON AMPIE VETRATE SU N°2 USCITE DA DUE LATI OPPOSTI CON AMPIO SPAZIO ESTERNO PRANZABILE, CON INGRESSO SOGGIORNO CON ANGOLO COTTURA, 2 CAMERE, 2 BAGNI, CORTE DI CIRCA 40 MQ E POSTO AUTO. APE cl "G" val: att: 222,57 kwh/mq anno.

Condizioni economiche

Contratto: Vendita
Prezzo: 157'000€
Arredato: No

Informazioni principali

Tipologia: Casa Semi Indipendente
Città: Fosdinovo
Zona: Caniparola
Superficie: 90 m²
N° locali: 4
N° Camere: 2
Piano: t
Posto auto: Si
Cucina: Angolo cottura

Efficenza energetica

Classe energetica: G
Ipe: 222 KWh/m2a
Anno di costruzione: 0
Condizioni stabile: Buono

Dati inserzione

ID Offrocasa.com: 10738787
Data inserimento: 26/05/2025
Rif. Agenzia: 1553
Rif. Agenzia 1553

Agenzia Immobiliare di Cecchi Roberto

Via Aurelia, 217 - Castelnuovo Magra (SP)
0187.1866587
Richiedi Info dal form:
Accetto l'Informativa Privacy


Agenzia Immobiliare di Cecchi Roberto

Via Aurelia, 217 - Castelnuovo Magra (SP)

Casa Semi Indipendente in Vendita a Fosdinovo, zona Caniparola, 157'000€, 90 m²

Chiama
Contatta