Trilocale in Vendita a Moggio, 88'000€, 84 m²

Locali: 3
Bagni: 1
Camere: 2
Piano: Rialzato
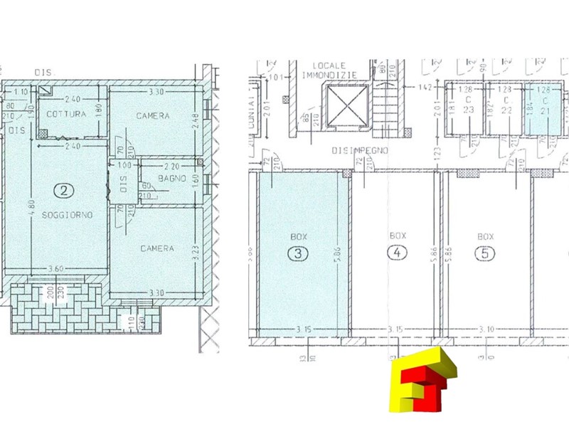
Trilocale in vendita a pochi passi dal centro sportivo e dalla funivia, ideale per chi cerca una casa per le vacanze. Situato in una zona residenziale tranquilla, questo immobile di 60 mq è perfetto per una famiglia. Composta da ampio soggiorno con profondo terrazzo coperto, cucinotto, camera matrimoniale, bagno luminoso con doccia e camera doppia con accesso al terrazzo. L'immobile si presenta in buone condizioni e con un'ottima esposizione solare, compreso nel prezzo c'è anche un ampio box auto con accesso diretto alla scala interna del condominio e una cantina. L'ampio terrazzo è perfetto per godersi il sole e la vista panoramica oltre che poterci comodamente pranzare.\nNessun gradino per accedere all'appartamento.

Condizioni economiche

Contratto: Vendita
Prezzo: 88'000€
Arredato: Arredato

Informazioni principali

Tipologia: Trilocale
Città: Moggio
Superficie: 84 m²
N° locali: 3
N° bagni: 1
N° Camere: 2
Piano: Rialzato
N° balconi: 1
Posto auto: Garage
Cucina: Cucinotto

Efficenza energetica

Classe energetica: G
Ipe: 509,42 KWh/mq
Anno di costruzione: 1971
Ristrutturato: Buone Condizioni
Riscaldamento: Centralizzato

Caratteristiche

Cantina: Presente

Dati inserzione

ID Offrocasa.com: 10737624
Data inserimento: 26/05/2025
Rif. Agenzia: V135
Rif. Agenzia V135

FT di Tognetti Fabio

via Vicinanza, n.6 - Cremeno (Lecco)
Richiedi Info dal form:
Accetto l'Informativa Privacy


Condividi

FT di Tognetti Fabio

via Vicinanza, n.6 - Cremeno (Lecco)

Trilocale in Vendita a Moggio, 88'000€, 84 m²

Contatta