Attività commerciale in Vendita a Fiuggi, 190'000€, 920 m²

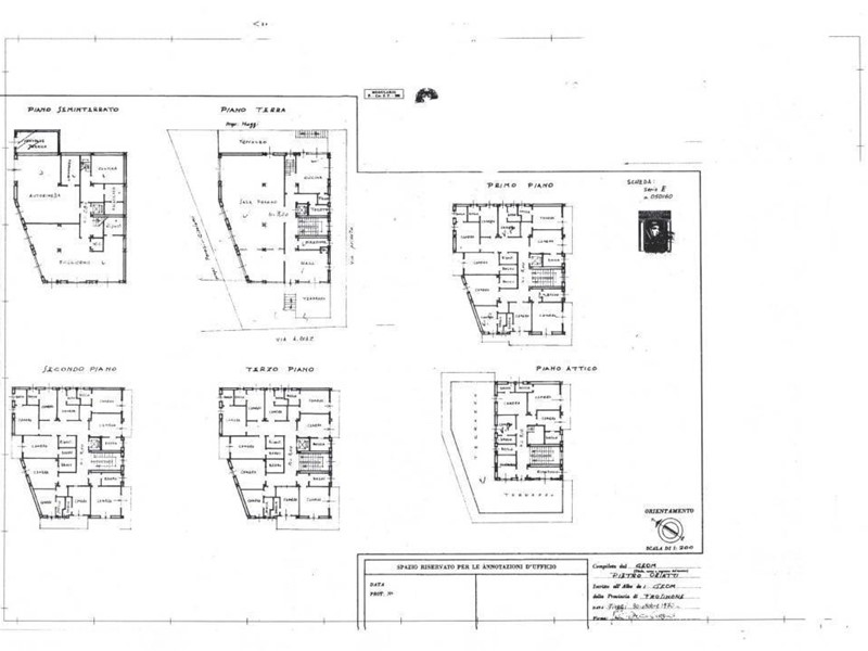
Opportunità Unica: Vendita di Struttura Alberghiera a Fiuggi L'agenzia Faraone immobiliare propone in vendita una struttura alberghiera situata a Fiuggi, precisamente in Via Armando Diaz, perfetta ubicazione per chi cerca un investimento in una delle più rinomate località termali Italiane. L'edificio, costruito negli anni '70 con solidi criteri in cemento armato, si sviluppa su sei piani fuori terra - serviti da ascensore- e offre spazi ben distribuiti, per un totale di n. 34 camere da letto - tutte con bagno interno. Al piano S1 trovano collocazione i locali di servizio; Al piano Terra - con accesso da Via Armando Diaz- sono ubicati gli spazi di accoglienza, quali hall, direzione, sala da pranzo, salotto, cucina e locali di servizio; Ai piani Primo, Secondo, Terzo e Quarto sono ubicati camere da letto e servizi, per un totale di 34 camere - oltre balconi esterni, ed al piano 4 è presente una terrazza di 115 mq ca. Al piano Quinto trova collocazione il locale serbatoi. La facciata esterna, in cortina e perfettamente conservata, dona eleganza e raffinatezza alla struttura, mentre la corte pavimentata antistante, oltre a migliorare l'accesso e l'accoglienza, rappresenta una soluzione versatile per creare piacevoli aree relax. Questa proprietà si presenta come una straordinaria opportunità per operatori del settore turistico o per chi desidera investire in una delle località termali più famose d'Italia. Non lasciarti sfuggire questa occasione, per maggiori informazioni o per fissare un appuntamento, contatta l'Agenzia Faraone immobiliare ai recapiti: 377.5784806 - 350.0082921.

Condizioni economiche

Contratto: Vendita
Prezzo: 190'000€

Informazioni principali

Tipologia: Attività commerciale
Città: Fiuggi
Superficie: 920 m²

Efficenza energetica

Classe energetica:
Anno di costruzione: 0

Dati inserzione

ID Offrocasa.com: 10737572
Data inserimento: 25/05/2025
Rif. Agenzia: V5072VTG
Rif. Agenzia V5072VTG

Professionecasa

Corso Nuova Italia 8 - Fiuggi (Frosinone)
0775.369301
Richiedi Info dal form:
Accetto l'Informativa Privacy


Professionecasa

Corso Nuova Italia 8 - Fiuggi (Frosinone)

Attività commerciale in Vendita a Fiuggi, 190'000€, 920 m²

Chiama
Contatta