Quadrilocale in Vendita a Empoli, 199'000€, 95 m², con Box

Locali: 4
Bagni: 1
Camere: 3
Piano: 1°
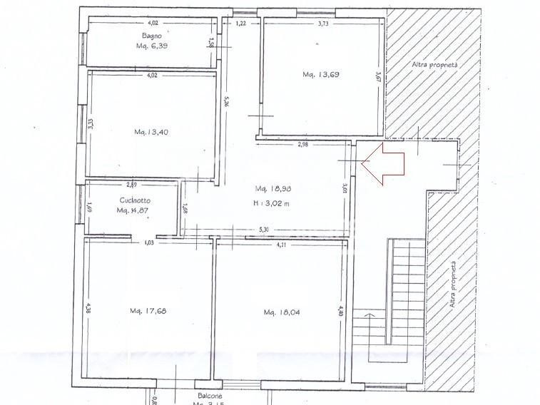
EMPOLI, VENDESI APPARTAMENTO DI 4 VANI CON BALCONE E GARAGE. Empoli, zona Santa Maria, proponiamo in vendita appartamento di quattro vani posto al primo piano. L’abitazione è composta da ingresso in un ampio disimpegno, soggiorno-pranzo con cucinotto, balcone, tre camere da letto (con possibilità di ampliare la zona giorno al posto di una camera) e bagno finestrato ristrutturato recentemente. Completa la proprietà un garage di circa 12 mq. L’appartamento si presenta in buone condizioni, abitabile da subito, con impianti funzionanti e ambienti ben mantenuti. Le spese condominiali ammontano a €/mese 25. Ideale per famiglie o per chi cerca una casa comoda. Si precisa che l'indirizzo presente non identifica l'esatta ubicazione dell'immobile questo al fine di tutelare la privacy e la riservatezza del venditore. Per maggiori informazioni e per organizzare una visita all'immobile o per proporvi alternative immobiliari adatte alle vostre esigenze potete contattare telefonicamente o tramite e-mail l'agenzia e dare il seguente riferimento SA1/595

Condizioni economiche

Contratto: Vendita
Prezzo: 199'000€

Informazioni principali

Tipologia: Quadrilocale
Città: Empoli
Superficie: 95 m²
N° locali: 4
N° bagni: 1
N° Camere: 3
Piano:
Box: si
Posto auto: 2

Efficenza energetica

Classe energetica: F
Ipe: 124,00 kwm2
Anno di costruzione: 1970
Ristrutturato: si

Dati inserzione

ID Offrocasa.com: 10734779
Data inserimento: 21/05/2025
Rif. Agenzia: 1326185/1378/SE/595
Rif. Agenzia 1326185/1378/SE/595

ESSE Immobiliare

Empoli - Firenze
3880308968
Richiedi Info dal form:
Accetto l'Informativa Privacy


Condividi

ESSE Immobiliare

Empoli - Firenze

Quadrilocale in Vendita a Empoli, 199'000€, 95 m², con Box

Chiama
Contatta