Attico in Vendita a Palermo, 870'000€, 246 m²

Locali: 6
Bagni: 2
Camere: 2
Piano: 5°
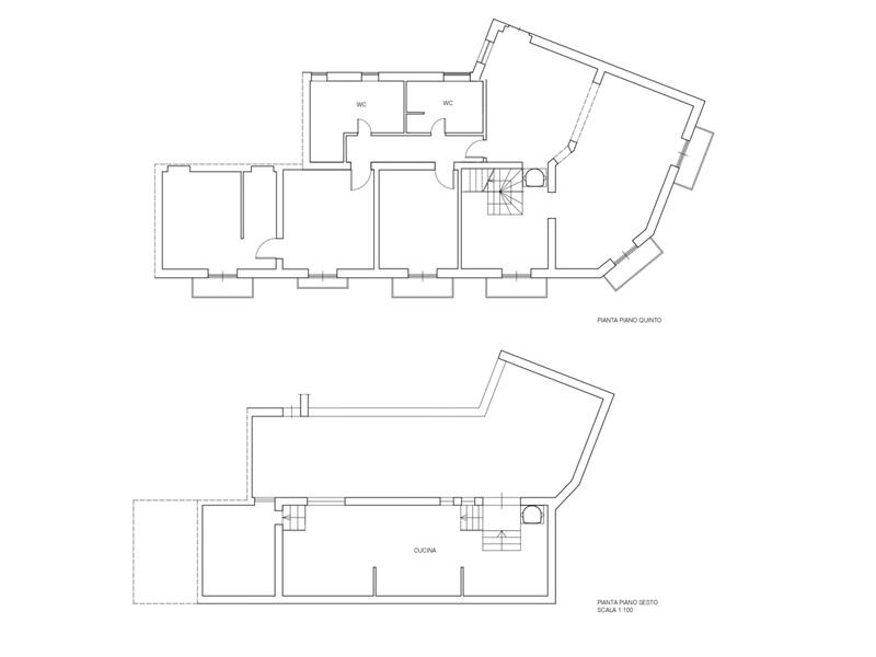
A pochi passi da Piazza Castelnuovo, in prossimità di Via Sammartino, se sei alla ricerca di una soluzione abitativa di prestigio, LUSSUOSO ATTICO E SUPERATTICO con terrazza, posizione angolare quinto e sesto piano. Con una superficie di 246 mq, questo appartamento offre ampi spazi e una vista mozzafiato sulla città e sul mare con una vista panoramica su Piazza Amendola. L'immobile si presenta in ottime condizioni interne. In contesto molto residenziale e ben servito da attività commerciali, uffici e trasporti pubblici proponiamo questo luminosissimo appartamento su due livelli con finiture di lusso, impianto di allarme, riscaldamento autonomo, impianto fotovoltaico e climatizzatori. L'accesso è dal 5 piano, con ingresso su elegante disimpegno che forma un unico ambiente con il raffinato salone illuminato dai due affacci su Piazza Amendola, corridoio di disimpegno che immette alla zona notte ove abbiamo camera da letto (adibita a studio), 2 wc con doccia, camera patronale con ampia cabina armadio. Il 6° piano lo si può raggiungere tramite ascensore privato o scala interna, recandoci nella zona cucina, super attrezzata, lavanderia, angolo pranzo con ampie vetrate che ci offrono luminosità e proiettano lo sguardo sulla splendida terrazza attrezzata, di circa 60 mq, in parte coperta e ben organizzata affinché si possa vivere l'esterno in relax e all'aperto godendo del clima e delle meraviglie che offre la nostra città. Nella vendita vi è la possibilità di acquistare oltre un box auto di 25 mq. al piano S1. Contattaci per maggiori informazioni e per organizzare una visita. Per info: Agenzia Gabetti Palermo Libertà, Via Camillo Cavour N°53/D, Tel. 0919294008

Condizioni economiche

Contratto: Vendita
Prezzo: 870'000€
Arredato: No
Spese condominiali: 110€

Informazioni principali

Tipologia: Attico
Città: Palermo
Superficie: 246 m²
N° locali: 6
N° bagni: 2
N° Camere: 2
Piano:
Cucina: Abitabile

Efficenza energetica

Classe energetica: 2015-F
Ipe: 219.60 kwm2
Climatizzatore: Si
Anno di costruzione: 1940
Riscaldamento: autonomo

Caratteristiche

Ascensore: Si

Dati inserzione

ID Offrocasa.com: 10730243
Data inserimento: 14/05/2025
Rif. Agenzia: Cod. rif GST134VRG
Rif. Agenzia Cod. rif GST134VRG

Gabetti

Via Camillo Cavour 53/D - Palermo
0919294008
Richiedi Info dal form:
Accetto l'Informativa Privacy


Gabetti

Via Camillo Cavour 53/D - Palermo

Attico in Vendita a Palermo, 870'000€, 246 m²

Chiama
Contatta