Villa bifamiliare in Vendita a Fiesole, 2'350'000€, 400 m²

Piano: Su più livelli
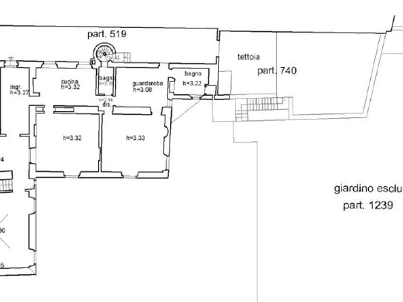
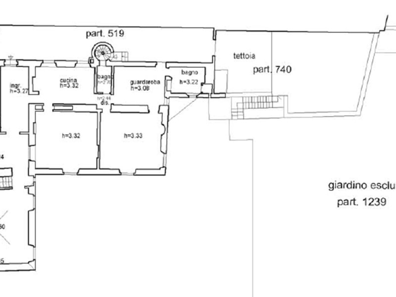
Firenze - San Domenico L'agenzia Gabetti Firenze Campo di Marte propone in vendita una porzione di villa storica del 1500 con affaccio sulla città di Firenze. 420mq circa distribuiti su due livelli, oltre loggia di 70mq circa e giardino esclusivo di 500mq con vista mozzafiato. Ingresso al piano terra da corte privata, alla quale si accede dal giardino condominiale dove vi sono 3 posti auto di pertinenza della porzione di villa. Piano terra: ampio ingresso, cucina abitabile, salone con affreschi risalenti all'epoca, camera matrimoniale, camera doppia con bagno in camera, altro bagno, ampio disimpegno con ripostiglio dove è possibile installare un ascensore, altro salone con altezza massima di 6,50m con soffitti affrescati e soppalco. Primo piano: doppio accesso tramite scala interna in muratura, o dalla corte esclusiva tramite scala a chiocciola in legno chiusa. Ampio disimpegno/studio, cucina abitabile, bagno finestrato, sala, camera matrimoniale ed ulteriore bagno con finestra. Travi a vista Loggia di 70mq circa con vista sul Duomo. Soffitta al piano sottotetto Buone le condizioni e lo stato manutentivo dell'intera proprietà.

Condizioni economiche

Contratto: Vendita
Prezzo: 2'350'000€

Informazioni principali

Tipologia: Villa bifamiliare
Città: Fiesole
Superficie: 400 m²
Piano: Su più livelli
Posto auto: Si
Cucina: Abitabile
Giardino: Privato

Efficenza energetica

Classe energetica:
Anno di costruzione: 0
Riscaldamento: autonomo

Dati inserzione

ID Offrocasa.com: 10726072
Data inserimento: 07/05/2025
Rif. Agenzia: Cod. rif 3233077VRG
Rif. Agenzia Cod. rif 3233077VRG

Gabetti

Piazza Leopoldo Nobili 4/5/6R - Firenze
055/5001791
Richiedi Info dal form:
Accetto l'Informativa Privacy


Gabetti

Piazza Leopoldo Nobili 4/5/6R - Firenze

Villa bifamiliare in Vendita a Fiesole, 2'350'000€, 400 m²

Chiama
Contatta