Negozio in Affitto a Bari, 2'600€, 280 m²

Locali: 2
Bagni: 2
Piano: Terra
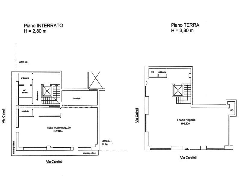
In Via Cairoli in angolo con Via Calefati, ampio locale angolare, prestigioso e completamente ristrutturato, con 5 vetrine alla strada. Il locale angolare è in categoria catastale C/1 (negozio) ed è di mq. 280 ca.. Lo spazio è diviso su due superfici. A piano terra due ingressi, entrambi con saracinesca elettrica, e cinque vetrine, due su Via Cairoli e tre su Via Calefati; un grande ambiente, con le volte alte mt. 3,80, un bagno con antibagno ed un ripostiglio per un totale di mq. 130 ca.. Collegato sia dall'ascensore privato interno al locale, sia da comode scale in ferro, il piano interrato è costituito da un altro grande spazio, con le volte alte mt. 2,80, un altro bagno con antibagno e vari locali tecnici, per un totale di mq. 150 ca.. Il locale è stato integralmente ristrutturato. E' stato rifatto l'impianto elettrico ed idrico fognante; è stata realizzata la predisposizione per la climatizzazione; il piano interrato è stato fornito di un sistema di aerazione forzata per ricambio e filtrazione dell'aria; sono stati sostituiti i pavimenti e sono stati rifatti i bagni, di cui uno per disabili. La struttura è elegante e funzionale. Il locale e' situato nel cuore della zona Murattiana, a tre isolati da Via Sparano, in un contesto signorile con ottima visibilità, in uno stabile signorile in corso di ristrutturazione. E' idoneo sia per una prestigiosa attività commerciale che per un grande ufficio. Per maggiori informazioni e per visitare l'immobile contattaci: Gabetti Franchising Centro, Madonnella e Garibaldi - Luciana Lorusso Immobiliare, Tel. 080.5216726 e 342.1411856 Siamo a disposizione per una consulenza gratuita presso i nostri uffici a Bari in Via Calefati 142 in angolo con Via marchese di Montrone.

Condizioni economiche

Contratto: Affitto
Prezzo: 2'600€
Arredato: No
Spese condominiali: 140€
Libero: Si

Informazioni principali

Tipologia: Negozio
Città: Bari
Superficie: 280 m²
N° locali: 2
N° bagni: 2
Piano: Terra

Efficenza energetica

Classe energetica:
Anno di costruzione: 1960
Riscaldamento: centralizzato

Dati inserzione

ID Offrocasa.com: 10721610
Data inserimento: 29/04/2025
Rif. Agenzia: Cod. rif 3231102ACG
Rif. Agenzia Cod. rif 3231102ACG

Gabetti

Via Calefati, 142 ang. Via Marchese di Montrone - - Bari
080/5216726
Richiedi Info dal form:
Accetto l'Informativa Privacy


Gabetti

Via Calefati, 142 ang. Via Marchese di Montrone - - Bari

Negozio in Affitto a Bari, 2'600€, 280 m²

Chiama
Contatta