Trilocale in Vendita a Cascina, 210'000€, 71 m²

Locali: 3
Bagni: 1
Camere: 2
Piano: 1°
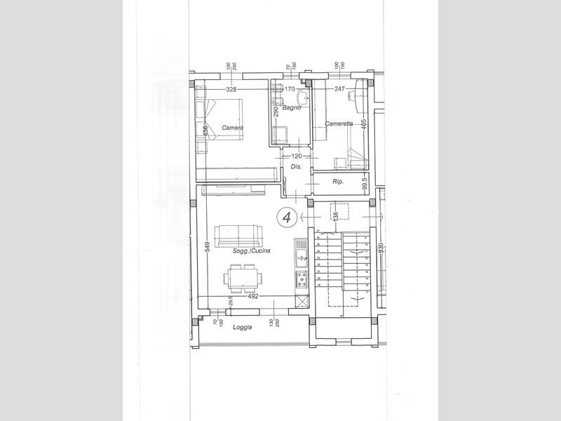
Cascina - € 210.000 IMMOBILE IN CLASSE "A4" CON IMPIANTO FOTOVOLTAICO. A pochi passi dal centro di Cascina è in fase di esecuzione l'intervento di riqualificazione denominato "LA VECCHIA FALEGNAMERIA" in cui verranno realizzate 12 unità immobiliari di tipo appartamento e villette con CLASSE ENERGETICA A/4. Nello specifico questo è un appartamento al piano primo con ingresso condiviso solo da 2 abitazioni, composto da ingresso in soggiorno, angolo cottura, ampio balcone, disimpegno notte, ripostiglio, due camere e bagno. Completano la proprietà due posti auto esclusivi. Dotato di tutte le tecnologie moderne, coibentazione pareti e tetto, riscaldamento a pavimento, 1,5 KW di IMPIANTO FOTOVOLTAICO PRIVATO, CALDAIA IBRIDA, UTENZE PRIVATE (NO CONDOMINIALI).POSSIBILITA' DI RECUPERO FISCALE SUL PREZZO COMPRESO IVA (AD OGGI CIRCA € 27.000 IN 10 ANNI, CIRCA € 2.700 L'ANNO). CONSEGNA DICEMBRE 2025. Classe prevista "A4" - Rif. 7458-9

Condizioni economiche

Contratto: Vendita
Prezzo: 210'000€

Informazioni principali

Tipologia: Trilocale
Città: Cascina
Superficie: 71 m²
N° locali: 3
N° bagni: 1
N° Camere: 2
Piano:
Posto auto: 2

Efficenza energetica

Classe energetica: A4
Ipe: 20,00 kwm2

Dati inserzione

ID Offrocasa.com: 10721332
Data inserimento: 27/04/2025
Rif. Agenzia: 1322835/31/7458-9
Rif. Agenzia 1322835/31/7458-9

PERLA Immobiliare

Via Via Pascoli,, 13 - Cascina (Pisa)
050711352
Richiedi Info dal form:
Accetto l'Informativa Privacy


PERLA Immobiliare

Via Via Pascoli,, 13 - Cascina (Pisa)

Trilocale in Vendita a Cascina, 210'000€, 71 m²

Chiama
Contatta