Trilocale in Vendita a Cascina, 225'000€, 74 m²

Locali: 3
Bagni: 1
Camere: 2
Piano: piano rialzato
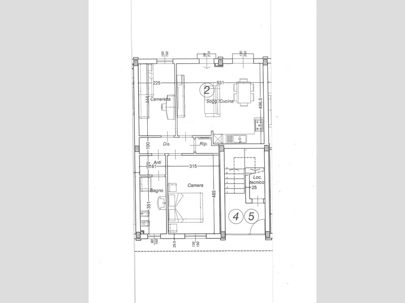
Cascina - € 225.000 IMMOBILE IN CLASSE "A4" CON IMPIANTO FOTOVOLTAICO. A pochi passi dal centro di Cascina è in fase di esecuzione l'intervento di riqualificazione denominato "LA VECCHIA FALEGNAMERIA" in cui verranno realizzate 12 unità immobiliari di tipo appartamento e villette con CLASSE ENERGETICA A/4. Nello specifico questo è un appartamento al piano terra con ingresso indipendente composto da ingresso in soggiorno, angolo cottura, disimpegno notte, ripostiglio, due camere e bagno. Completano la proprietà il giardino e due posti auto esclusivi. Dotato di tutte le tecnologie moderne, coibentazione pareti e tetto, riscaldamento a pavimento, 1,5 KW di IMPIANTO FOTOVOLTAICO PRIVATO, CALDAIA IBRIDA, UTENZE PRIVATE (NO CONDOMINIALI). POSSIBILITA' DI RECUPERO FISCALE SUL PREZZO COMPRESO IVA (AD OGGI CIRCA € 29.000 IN 10 ANNI, CIRCA € 2.900 L'ANNO). CONSEGNA 2-3 mesi. Classe prevista "A4" - Rif. 7458-2

Condizioni economiche

Contratto: Vendita
Prezzo: 225'000€

Informazioni principali

Tipologia: Trilocale
Città: Cascina
Superficie: 74 m²
N° locali: 3
N° bagni: 1
N° Camere: 2
Piano: piano rialzato
Posto auto: 2
Giardino: privato

Efficenza energetica

Classe energetica: A4
Ipe: 20,00 kwm2

Dati inserzione

ID Offrocasa.com: 10721331
Data inserimento: 27/04/2025
Rif. Agenzia: 1322833/31/7458-2
Rif. Agenzia 1322833/31/7458-2

PERLA Immobiliare

Via Via Pascoli,, 13 - Cascina (Pisa)
050711352
Richiedi Info dal form:
Accetto l'Informativa Privacy


Condividi

PERLA Immobiliare

Via Via Pascoli,, 13 - Cascina (Pisa)

Trilocale in Vendita a Cascina, 225'000€, 74 m²

Chiama
Contatta