Quadrilocale in Vendita a Bibiana, 139'000€, 120 m²
        
    
        
    
        
    
    
        Bibiana centro.
In piccola palazzina di sole sei unità abitative, proponiamo splendido appartamento TERMO AUTONOMO con giardino PRIVATO.
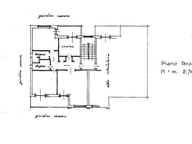
Posto al terzo ed ultimo piano, si presente in splendide condizioni generali, sviluppa una superficie di ca. 120 mq, libero tre lati con ottima esposizione. Composto da ampio ingresso, cucina abitabile con balcone, salone doppio, due camere matrimoniali, doppio servizio, ripostiglio, terrazzo coperto di ca. 15 mq, cantina, ampio box auto e giardino privato di ca. 150mq.
Già dotato di infissi con doppio vetro, bagni nuovi, impianti rifatti e caldaia a condensazione appena sostituita.
Assolutamente da vedere!
Richiesta ? 139.000,00.
Contattaci per organizzare una visita e scoprire di più su questa fantastica opportunità immobiliare, fissa un appuntamento, non impegnativo, direttamente in Agenzia al numero 0121.901697 o al 328.40.81.397 dove un nostro funzionario sarà lieto di fornirvi tutta la consulenza necessaria a pianificare il vostro nuovo acquisto. La casa è il bene più prezioso?non si acquista tutti giorni?e noi questo lo sappiamo bene.
	
    
    
    
        
        
            Condizioni economiche
            
                Contratto: Vendita
            
            
                Prezzo: 139'000€
            
            
         
        
            Informazioni principali
            
                Tipologia: Quadrilocale
            
            
                Città: Bibiana
            
            
                
                    Superficie: 120 m²
                
            
                
                    N° locali: 4
                
            
                
                    N° bagni: 2
                
            
                
                    N° Camere: 2
                
            
                
                    Piano: 3°
                
            
                
                    Box: Singolo
                
            
                
                    Cucina: Abitabile
                
            
                
                    Giardino: Privato
                
            
         
        
            Efficenza energetica
            
                Classe energetica: 2015-D
            
            
                
                    Ipe: 136.78 kwm2
                
            
                
                    Anno di costruzione: 1980
                
            
                
                    Riscaldamento: autonomo 
                
            
		 
        
                
                    Caratteristiche
                    
                        
                            Cantina: Si
                        
                    
                 
            
            
                Dati inserzione
                
                    ID Offrocasa.com: 10712207
                
                
                
                    Data inserimento: 11/04/2025
                
                
                    
                        Rif. Agenzia: 570VRG
                    
                
             
        
	 
    
    
        
Quadrilocale in Vendita a Bibiana, 139'000€, 120 m²