Appartamento in Vendita a San Severo, 165'000€, 237 m²

Locali: 10
Bagni: 2
Camere: 2
Piano: 1°
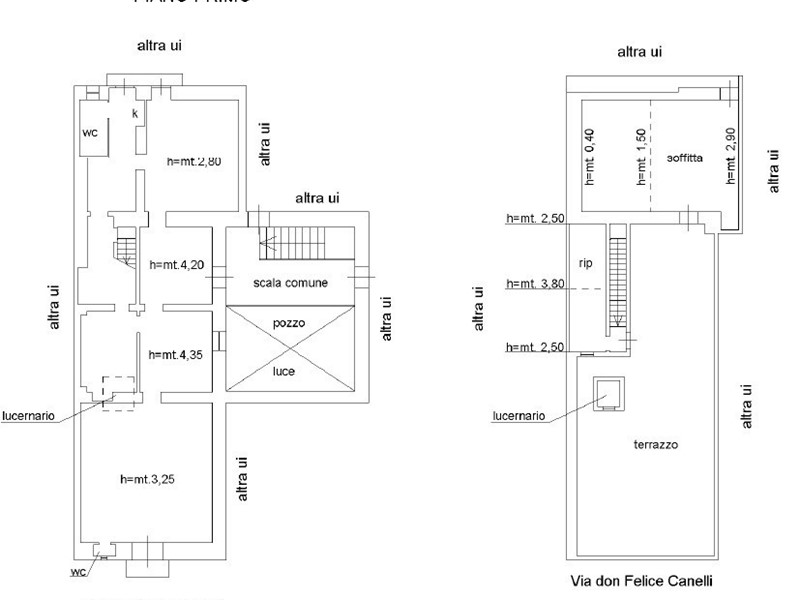
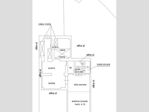
A Porta Lucera, in uno stabile d'epoca su via Don Felice Canelli, proponiamo in vendita un caratteristico appartamento semindipendente, con ampi locali al piano terra. Con ingresso da una tipica corte storica, la proprietà ha una superficie totale di 237mq disposti su tre livelli: offre un'ampia cantina al piano terra, un appartamento di circa 150mq e una soffitta con un terrazzo panoramico. Da ristrutturare internamente, l'immobile è libero e pronto per essere personalizzato secondo i propri gusti. La posizione centrale offre comodità con la vicinanza a bar, ristoranti, mercati, farmacie, scuole e negozi. Un'opportunità unica per chi desidera vivere in uno spazio ampio e caratteristico nel cuore della città. IMPORTANTE: Si precisa che le descrizioni sopra riportate non rappresentano alcun impegno contrattuale. Si avvisa inoltre la spettabile clientela che le caratteristiche tecniche, la disposizione interna e gli accessori indicati potrebbero, in alcuni casi, differire dall'effettivo stato di fatto dell'immobile. A causa delle difformità dei dati pubblicati dai vari portali, la nostra agenzia immobiliare declina ogni responsabilità per eventuali involontarie incoerenze.

Condizioni economiche

Contratto: Vendita
Prezzo: 165'000€
Libero: Si

Informazioni principali

Tipologia: Appartamento
Città: San Severo
Superficie: 237 m²
N° locali: 10
N° bagni: 2
N° Camere: 2
Piano:
Giardino: Comune

Efficenza energetica

Classe energetica:
Anno di costruzione: 0
Riscaldamento: autonomo

Caratteristiche

Cantina: Si

Dati inserzione

ID Offrocasa.com: 10711240
Data inserimento: 10/04/2025
Rif. Agenzia: Cod. rif 3223687VRG
Rif. Agenzia Cod. rif 3223687VRG

Gabetti

Corso Garibaldi 86 - San Severo (Foggia)
0882/430083
Richiedi Info dal form:
Accetto l'Informativa Privacy


Condividi

Gabetti

Corso Garibaldi 86 - San Severo (Foggia)

Appartamento in Vendita a San Severo, 165'000€, 237 m²

Chiama
Contatta