Casa Indipendente in Vendita a Lamporecchio, 85'000€, 260 m²

Locali: 10+
Camere: 5
Piano: piano terra
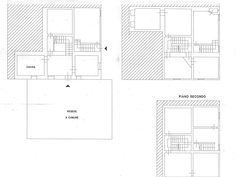
Lamporecchio, zona semicentrale, vicino a tutti i servizi ma in zona tranquilla vendesi terratetto libero 3 lati e su 3 livelli per circa 260mq in contesto di poche unità abitative. L'immobile è composto da circa 14 vani, il cui utilizzo è da stabilirsi. L'immobile infatti risulta da totalmente ristrutturare e si presta a una ridivisione degli spazi interni. In particolare è possibile, data la notevole metratura, realizzare due abitazioni indipendenti. A completare l'offerta terreno nei pressi dell'immobile di circa 450mq ad olivi.ù DIsponibilità immediata, prezzo trattabile.

Condizioni economiche

Contratto: Vendita
Prezzo: 85'000€
Prezzo trattabile: si

Informazioni principali

Tipologia: Casa Indipendente
Città: Lamporecchio
Superficie: 260 m²
N° locali: 10+
N° Camere: 5
Piano: piano terra
Posto auto: 3
Giardino: privato

Efficenza energetica

Classe energetica: G
Ipe: 270,00 kwm2
Ristrutturato: no

Dati inserzione

ID Offrocasa.com: 10711195
Data inserimento: 10/04/2025
Rif. Agenzia: 1318604/558/B-938
Rif. Agenzia 1318604/558/B-938

LA MERIDIANA Agenzia Immobiliare

Via Via V. Gramsci,, 2 - Lamporecchio (Pistoia)
057381781
Richiedi Info dal form:
Accetto l'Informativa Privacy


LA MERIDIANA Agenzia Immobiliare

Via Via V. Gramsci,, 2 - Lamporecchio (Pistoia)

Casa Indipendente in Vendita a Lamporecchio, 85'000€, 260 m²

Chiama
Contatta