Villa in Vendita a Fucecchio, zona Torre, 145'000€, 170 m², con Box

Locali: 6
Bagni: 4
Camere: 4
Piano: piano terra
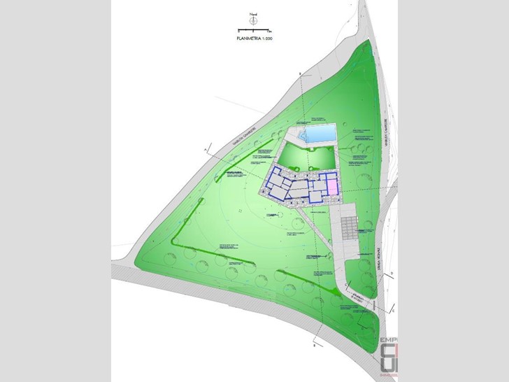
Torre - Fucecchio - Rif. F/0723 - FUCECCHIO COLLINARE. PER CHI AMA LA PRIVACY ASSOLUTA E VUOLE ALLO STESSO TEMPO ESSERE COMODO PER LA VIABILITA' PRINCIPALE E PER RAGGIUNGERE LA CITTADINA ED I RELATIVI SERVIZI. CASALE DIRUTO CON PERMESSO PER COSTRUIRE RILASCIATO ED ONERI PAGATI, PER LA REALIZZAZIONE DI UNA FANTASTICA VILLA PROGETTATA DA NOTO ARCHITETTO LOCALE IN CHIAVE MODERNA E MINIMALISTA MA CON IL RISPETTO E LA DELICATEZZA CHE IL CONTESTO CIRCOSTANTE RICHIEDE. LA VILLA CONTA CIRCA MQ 180 DEI QUALI 160 DESTINATI AD ABITAZIONE E 20 A GARAGE. TUTTO INSERITO AD ARTE IN UN GIARDINO A MISURA D'UOMO DI CIRCA MQ 4000. IL PROGETTO VEDE ARRICCHIRE QUESTA FANTASTICA OPPORTUNITA' DI BEN 5 LOGGIATI, INSERTI IN CORTEN E PIETRA, UNA PISCINA NELLA ZONA PIU' CHE MAI RISERVATA, ED UN PERGOLATO ESTERNO PER IL PARCHEGGIO DELLE AUTO PROPRIE E DEGLI OSPITI, UTILE AD ALLOCARE I PANNELLI FOTOVOLTAICI. La distribuzione degli ambienti risulta ottima, funzionale ma anche versatile: la zona giorno nel cuore della villa divide due zone distinte con due camere matrimoniali + due bagni dedicati a sinistra, due camere matrimoniali + due bagni dedicati a destra. La cottura è separata ed è progettato un quinto servizio igienico per ospiti. Classe energetica: Esente euro 145.000,00

Condizioni economiche

Contratto: Vendita
Prezzo: 145'000€

Informazioni principali

Tipologia: Villa
Città: Fucecchio
Zona: Torre
Superficie: 170 m²
N° locali: 6
N° bagni: 4
N° Camere: 4
Piano: piano terra
Box: si
Giardino: privato

Efficenza energetica

Classe energetica: In attesa di certificazione
Ristrutturato: no

Caratteristiche

Videocitofono: si

Dati inserzione

ID Offrocasa.com: 10710064
Data inserimento: 09/04/2025
Rif. Agenzia: 1318298/144/F/0723
Rif. Agenzia 1318298/144/F/0723

EMPOLI CLUB IMMOBILIARE

Via Via Roma,, 77 - Empoli (Firenze)
0571527150
Richiedi Info dal form:
Accetto l'Informativa Privacy


EMPOLI CLUB IMMOBILIARE

Via Via Roma,, 77 - Empoli (Firenze)

Villa in Vendita a Fucecchio, zona Torre, 145'000€, 170 m², con Box

Chiama
Contatta