Ufficio in Vendita a Bologna, 117'000€, 44 m²

Locali: 2
Bagni: 1
Piano: 1°
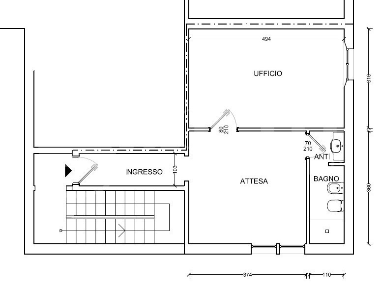
BORGO PANIGALE-VIA MARCO CELIO, AD.ZE STAZIONE DEI TRENI prossima alla fermata del tram e all'uscita della tangenziale proponiamo, all'interno di borghetto, ufficio di 44 mq composto da due ambienti e bagno; ristrutturato completamente a nuovo con consegna a Dicembre 2025. Ottime finiture da capitolato con possibilità di scelta dei materiali e appalto lavori con detrazioni fiscali. Ideale per investimento con ottima redditività. Disponibili posti auto in vendita a parte. Disponiamo di varie possibilità di finanziamenti con la nostra struttura del Gruppo Gabetti, Monety. Passa a trovarci in ufficio. EURO 117.000 Rif.: 09/CE

Condizioni economiche

Contratto: Vendita
Prezzo: 117'000€

Informazioni principali

Tipologia: Ufficio
Città: Bologna
Superficie: 44 m²
N° locali: 2
N° bagni: 1
Piano:
Posto auto: Si

Efficenza energetica

Classe energetica:
Climatizzatore: Si
Anno di costruzione: 1950
Riscaldamento: autonomo

Dati inserzione

ID Offrocasa.com: 10707558
Data inserimento: 04/04/2025
Rif. Agenzia: 09/CEVCU
Rif. Agenzia 09/CEVCU

Gabetti

Via Emillia Levante 31/E - Bologna
051/546759
Richiedi Info dal form:
Accetto l'Informativa Privacy


Gabetti

Via Emillia Levante 31/E - Bologna

Ufficio in Vendita a Bologna, 117'000€, 44 m²

Chiama
Contatta