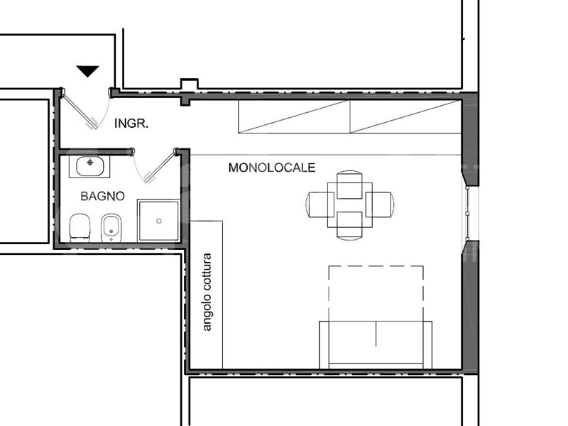
Monolocale in Vendita a Bologna, 121'000€, 34 m²

Locali: 1
Bagni: 1
Camere: 1
Piano: 1°
BORGO PANIGALE-VIA MARCO CELIO, AD.ZE STAZIONE DEI TRENI prossima alla fermata del tram e all'uscita della tangenziale proponiamo, all'interno di borghetto, monolocale con bagno di 34 mq ristrutturato completamente a nuovo con consegna a Dicembre 2025. Ottime finiture da capitolato con possibilità di scelta dei materiali e appalto lavori con detrazioni fiscali. Ideale per investimento con ottima redditività oppure per single o coppie. Disponibili posti auto in vendita a parte. Disponiamo di varie possibilità di finanziamenti con la nostra struttura del Gruppo Gabetti, Monety. Passa a trovarci in ufficio. EURO 121.000 Rif.: 03/CE

Condizioni economiche

Contratto: Vendita
Prezzo: 121'000€

Informazioni principali

Tipologia: Monolocale
Città: Bologna
Superficie: 34 m²
N° locali: 1
N° bagni: 1
N° Camere: 1
Piano:
Posto auto: Si
Cucina: Angolo Cottura

Efficenza energetica

Classe energetica:
Climatizzatore: Si
Anno di costruzione: 1950
Riscaldamento: autonomo

Dati inserzione

ID Offrocasa.com: 10707550
Data inserimento: 04/04/2025
Rif. Agenzia: 03/CEVRG
Rif. Agenzia 03/CEVRG

Gabetti

Via Emillia Levante 31/E - Bologna
051/546759
Richiedi Info dal form:
Accetto l'Informativa Privacy


Gabetti

Via Emillia Levante 31/E - Bologna

Monolocale in Vendita a Bologna, 121'000€, 34 m²

Chiama
Contatta