Trilocale in Vendita a Monza, 502'000€, 111 m²

Locali: 3
Bagni: 2
Camere: 2
Piano: 3°
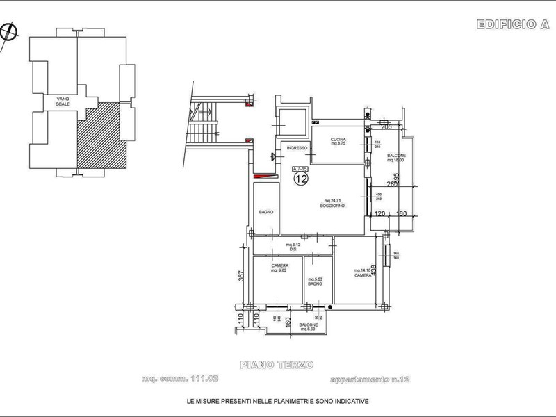
MONZA TRIANTE - Il nuovo complesso "Residenza Europa", sorge in un punto strategico della città, a soli 2 km di distanza dal centro di Monza, immerso in un' oasi di verde, lontano dai rumori del traffico, senza rinunciare ai servizi dei negozi di vicinato, ai supermercati, al centro sportivo, palestre, banche e scuole. I trasporti pubblici sotto casa permettono di raggiungere comodamente le stazioni ferroviarie di Monza e di Sesto FS. Realizzato con edilizia eco-sostenibile in classe energetica A2 prevede, cappotto termico, coibentazione del tetto, posa a pavimento di pannello fono isolante, impianto di riscaldamento/raffrescamento a pavimento con deumidificatore, serramenti pvc triplo vetro antisfondamento, tapparelle in alluminio e con cassonetti integrati e coibentati. Impianto fotovoltaico a servizio delle parti comuni dell'intero complesso. APPARTAMENTO A12 - Tre locali e doppi servizi, posto al terzo piano composto da: ingresso, soggiorno e cucina abitabile serviti da uno splendido terrazzo esposto a est. Il disimpegno conduce alla zona notte dove troviamo una camera matrimoniale, una cameretta servita da balcone e due ampi bagni disimpegnati uno dei quali con affaccio su balcone. Gli immobili sono in PRONTA CONSEGNA con la possibilità di personalizzare le finiture secondo il tuo gusto. Inoltre è possibile visionare in loco un appartamento campione completamente arredato, per toccare con mano la qualità e il design che ti aspettano. Grimaldi si trova a Monza in Via Vittorio Emanuele II, 44 - www.grimaldimonza.org - YouTube: "GrimaldiMonza"- info@grimaldimonza.org - Tel. 039 9253140 - WhatsApp: 3516208262

Condizioni economiche

Contratto: Vendita
Prezzo: 502'000€
Arredato: No
Libero: Si

Informazioni principali

Tipologia: Trilocale
Città: Monza
Superficie: 111 m²
N° locali: 3
N° bagni: 2
N° Camere: 2
Piano:
Cucina: Abitabile
Giardino: Comune

Efficenza energetica

Classe energetica: 2015-A3
Ipe: 46.47 kwm2
Climatizzatore: Si
Anno di costruzione: 2023

Caratteristiche

Cantina: Si
Ascensore: Si
Videocitofono: Si

Dati inserzione

ID Offrocasa.com: 10706912
Data inserimento: 03/04/2025
Rif. Agenzia: Cod. rif 3224496VRG
Rif. Agenzia Cod. rif 3224496VRG

Grimaldi Immobiliare

Via Vittorio Emanuele II 44 - Monza (Monza-Brianza)
039/9253140
Richiedi Info dal form:
Accetto l'Informativa Privacy


Grimaldi Immobiliare

Via Vittorio Emanuele II 44 - Monza (Monza-Brianza)

Trilocale in Vendita a Monza, 502'000€, 111 m²

Chiama
Contatta