Bilocale in Vendita a Monza, 330'000€, 74 m²

Locali: 2
Bagni: 1
Camere: 2
Piano: 2°
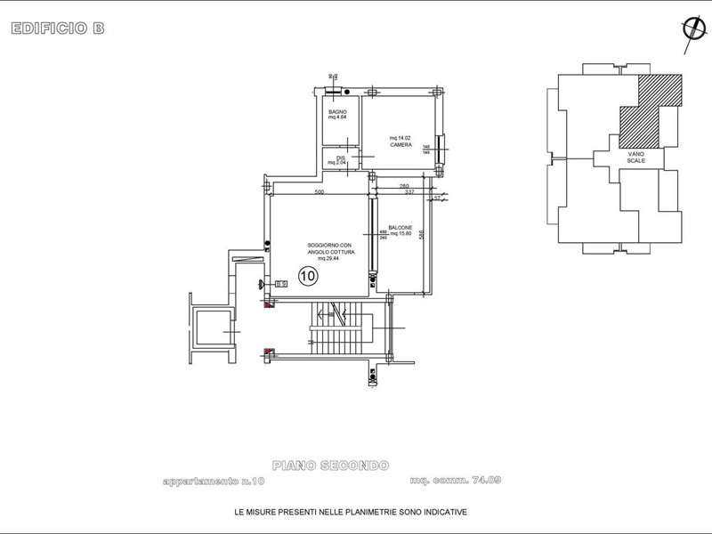
MONZA TRIANTE - Il nuovo complesso "Residenza Europa", sorge in un punto strategico della città, a soli 2 km di distanza dal centro di Monza, immerso in un' oasi di verde, lontano dai rumori del traffico, senza rinunciare ai servizi dei negozi di vicinato, ai supermercati, al centro sportivo, palestre, banche e scuole. I trasporti pubblici sotto casa permettono di raggiungere comodamente le stazioni ferroviarie di Monza e di Sesto FS. Realizzato con edilizia eco-sostenibile in classe energetica A2 prevede, cappotto termico, coibentazione del tetto, posa a pavimento di pannello fono isolante, impianto di riscaldamento/raffrescamento a pavimento con deumidificatore, serramenti pvc triplo vetro antisfondamento, tapparelle in alluminio e con cassonetti integrati e coibentati. Impianto fotovoltaico a servizio delle parti comuni dell'intero complesso. APPARTAMENTO B10 - Due locali, posto al secondo piano composto da: ingresso su zona living con cucina a vista serviti da uno splendido terrazzo esposto ad est. Il disimpegno conduce alla zona notte dove troviamo una camera matrimoniale e una balcone finestrato. Gli immobili sono in PRONTA CONSEGNA con la possibilità di personalizzare le finiture secondo il tuo gusto. Inoltre è possibile visionare in loco un appartamento campione completamente arredato, per toccare con mano la qualità e il design che ti aspettano. Grimaldi si trova a Monza in Via Vittorio Emanuele II, 44 - www.grimaldimonza.org - YouTube: "GrimaldiMonza"- info@grimaldimonza.org - Tel. 039 9253140 - WhatsApp: 3516208262

Condizioni economiche

Contratto: Vendita
Prezzo: 330'000€
Arredato: No
Libero: Si

Informazioni principali

Tipologia: Bilocale
Città: Monza
Superficie: 74 m²
N° locali: 2
N° bagni: 1
N° Camere: 2
Piano:
Cucina: Abitabile
Giardino: Comune

Efficenza energetica

Classe energetica: 2015-A3
Ipe: 46.47 kwm2
Climatizzatore: Si
Anno di costruzione: 2023

Caratteristiche

Cantina: Si
Ascensore: Si
Videocitofono: Si

Dati inserzione

ID Offrocasa.com: 10706890
Data inserimento: 03/04/2025
Rif. Agenzia: Cod. rif 3224593VRG
Rif. Agenzia Cod. rif 3224593VRG

Grimaldi Immobiliare

Via Vittorio Emanuele II 44 - Monza (Monza-Brianza)
039/9253140
Richiedi Info dal form:
Accetto l'Informativa Privacy


Grimaldi Immobiliare

Via Vittorio Emanuele II 44 - Monza (Monza-Brianza)

Bilocale in Vendita a Monza, 330'000€, 74 m²

Chiama
Contatta