Capannone in Affitto a Porcari, 2'000€, 380 m²

Locali: 1
Piano: piano terra
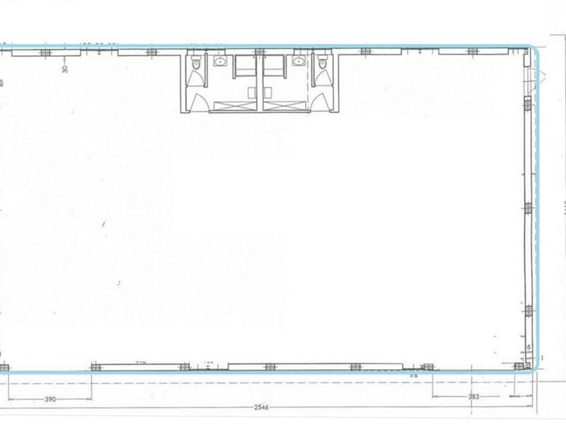
F552K - PORCARI (Lucca) - Vi proponiamo in locazione un capannone libero su 4 lati di mq 380 ad uso industriale/artigianale. E' composto da unico e ampi vanno e dotato di due portoni di tipo industrili di ingresso, tetto centinato dotato oltre a due vani e doppi servizi entrambi separati - L'altezza sottotrave è di ml. 5,20 quella massima di 7,50 - Lo stato di manutenzione e conservazione generale è buono - Predisposto già per carroponte. Non è presente l'impianto di riscaldamento - Libero da marzo 2026 ma visionabile - Al canone va aggiunta l'iva - Classe energerica G - 456,78

Condizioni economiche

Contratto: Affitto
Prezzo: 2'000€

Informazioni principali

Tipologia: Capannone
Città: Porcari
Superficie: 380 m²
N° locali: 1
Piano: piano terra

Efficenza energetica

Classe energetica: G
Ipe: 160,00 kwm2
Anno di costruzione: 2016
Ristrutturato: si

Dati inserzione

ID Offrocasa.com: 10703889
Data inserimento: 30/03/2025
Rif. Agenzia: 1316750/1299/F555K
Rif. Agenzia 1316750/1299/F555K

LUCCA CASE Agenzia Immobiliare

Viale Viale Europa,, 474 - Lucca
0583583528
Richiedi Info dal form:
Accetto l'Informativa Privacy


LUCCA CASE Agenzia Immobiliare

Viale Viale Europa,, 474 - Lucca

Capannone in Affitto a Porcari, 2'000€, 380 m²

Chiama
Contatta