Ufficio in Vendita a Campobasso, 265'000€, 220 m²

Locali: 5
Bagni: 2
Piano: Terra
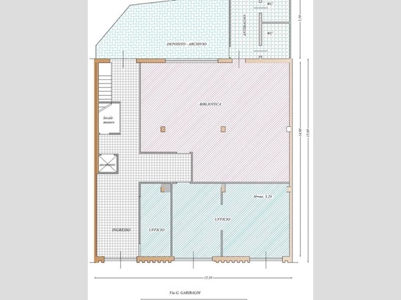
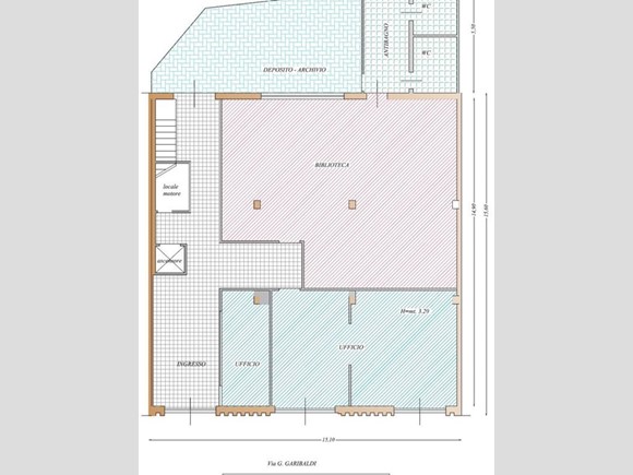
In zona residenziale ben servita proponiamo in vendita quattro uffici posti all'interno di uno stabile di quattro livelli servito da ascensore. Le unità possono essere vendute singolarmente oppure in blocco a seconda delle necessità. Il prezzo richiesto è di 1.200?/mq. Le disponibilità attuali sono le seguenti: - ufficio/locale commerciale al piano terra di circa 250 mq, con due vetrine fronte strada, composto da quattro vani e due bagni; - due uffici, uno al primo piano e l'altro al secondo piano, grandi ognuno 220 mq e composti da cinque ampi vani e due bagni; - ufficio al terzo piano mansardato composto da sei vani, un bagno e un terrazzo. Seguiteci anche su FACEBOOK e INSTAGRAM! Cercate "GABETTI CAMPOBASSO" per essere sempre aggiornati sui nostri immobili.

Condizioni economiche

Contratto: Vendita
Prezzo: 265'000€
Libero: Si

Informazioni principali

Tipologia: Ufficio
Città: Campobasso
Superficie: 220 m²
N° locali: 5
N° bagni: 2
Piano: Terra

Efficenza energetica

Classe energetica: 2015-G
Ipe: 247.10 kwm2
Climatizzatore: Si
Anno di costruzione: 0
Riscaldamento: autonomo

Caratteristiche

Ascensore: Si

Dati inserzione

ID Offrocasa.com: 10697976
Data inserimento: 21/03/2025
Rif. Agenzia: Cod. rif 3222075VCU
Rif. Agenzia Cod. rif 3222075VCU

Gabetti

Prossima Apertura - Campobasso
0000000000
Richiedi Info dal form:
Accetto l'Informativa Privacy


Gabetti

Prossima Apertura - Campobasso

Ufficio in Vendita a Campobasso, 265'000€, 220 m²

Chiama
Contatta