Casa Semi Indipendente in Vendita a Lucca, 54'825€, 171 m²

Locali: 8
Camere: 4
Piano: t
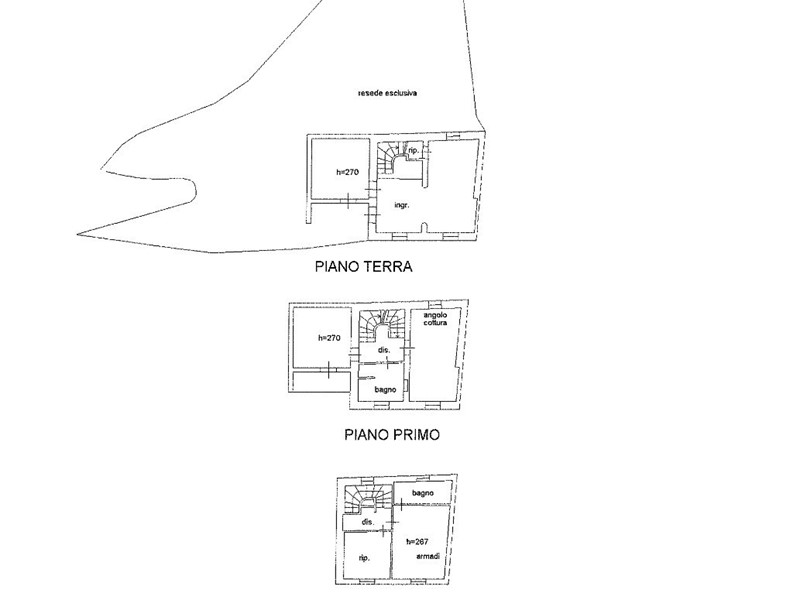
La piena proprietà su fabbricato di tipo terratetto posto in posizione finale di una schiera di corte prospiciente la Via per Pieve di Brancoli frazione Vinchiana, elevato parte a uno e parte a due piani fuori terra, oltre al terrestre. - Il Prezzo visualizzato è la Base d'Asta in quanto l’immobile è oggetto di esecuzione immobiliare venduto tramite Asta Giudiziaria. - L'immobile aggiudicato, viene venduto libero e sgombro da persone cose ed ipoteche nello stato di fatto e di diritto in cui si trova. - Non rappresentiamo il Tribunale, ma lavoriamo nell'esclusivo interesse del potenziale acquirente per garantire un acquisto sicuro. - I consulenti di ASTE ITALIA ti assisteranno in tutte le attività dell'iter giudiziario dalla visita dell'immobile fino alla consegna chiavi. - Contatta il nostro Servizio Clienti , i nostri operatori sono a disposizione per chiarire i molteplici dubbi per partecipare alle ASTE.

Condizioni economiche

Contratto: Vendita
Prezzo: 54'825€
Arredato: No

Informazioni principali

Tipologia: Casa Semi Indipendente
Città: Lucca
Superficie: 171 m²
N° locali: 8
N° Camere: 4
Piano: t
N° balconi: 1
Cucina: Angolo cottura
Giardino: Si

Efficenza energetica

Classe energetica: G
Anno di costruzione: 0
Condizioni stabile: Discreto

Dati inserzione

ID Offrocasa.com: 10695534
Data inserimento: 18/03/2025
Rif. Agenzia: LU80/22LU-1403-25-1200
Rif. Agenzia LU80/22LU-1403-25-1200

Domy Online S.r.l.

Via San Lorenzo 5/41 - Genova
010.8935187
Richiedi Info dal form:
Accetto l'Informativa Privacy


Domy Online S.r.l.

Via San Lorenzo 5/41 - Genova

Casa Semi Indipendente in Vendita a Lucca, 54'825€, 171 m²

Chiama
Contatta