Negozio in Affitto a Manduria, 550€, 105 m²

Bagni: 1
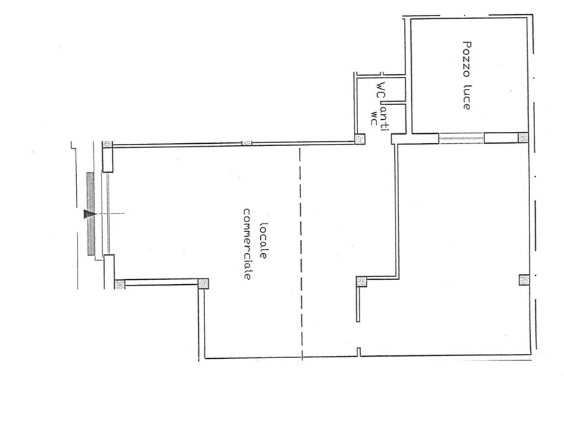
Proponiamo in affitto un luminoso negozio ad uso commerciale situato nel cuore del comune di Manduria (TA). Con una superficie di 105 mq, questo locale vanta un'ottima posizione in una zona ben servita, con la presenza di servizi essenziali come stazione ferroviaria, bar, ferramenta e scuole. Il locale, appartenente alla categoria C1, è composto da un ampio locale a pianta aperta, ideale per personalizzare gli spazi secondo le proprie esigenze commerciali. Inoltre, dispone di un vano deposito e un bagno. La vicinanza ad altre attività commerciali rende questo locale ancora più interessante per chi desidera avviare o ampliare la propria attività in un contesto dinamico e vivace. Non perdere l'opportunità di dare vita al tuo progetto imprenditoriale in questo spazioso e ben posizionato negozio a Manduria. Contattaci per maggiori informazioni e per organizzare una visita.

Condizioni economiche

Contratto: Affitto
Prezzo: 550€
Arredato: No
Libero: Si

Informazioni principali

Tipologia: Negozio
Città: Manduria
Superficie: 105 m²
N° bagni: 1

Efficenza energetica

Classe energetica: 2015-G
Ipe: 270.03 kwm2
Anno di costruzione: 0

Dati inserzione

ID Offrocasa.com: 10693999
Data inserimento: 15/03/2025
Rif. Agenzia: 1063ACG
Rif. Agenzia 1063ACG

Professionecasa

VIA ROMA 58A - Manduria (Taranto)
099/9461396
Richiedi Info dal form:
Accetto l'Informativa Privacy


Professionecasa

VIA ROMA 58A - Manduria (Taranto)

Negozio in Affitto a Manduria, 550€, 105 m²

Chiama
Contatta