Capannone in Vendita a Sermoneta, 735'000€, 1600 m²

Locali: 2
Bagni: 2
Piano: Terra
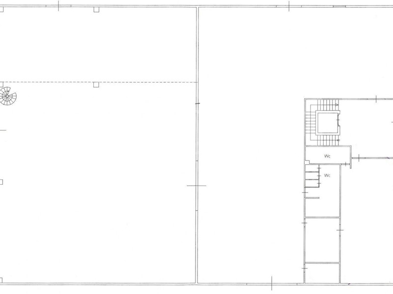
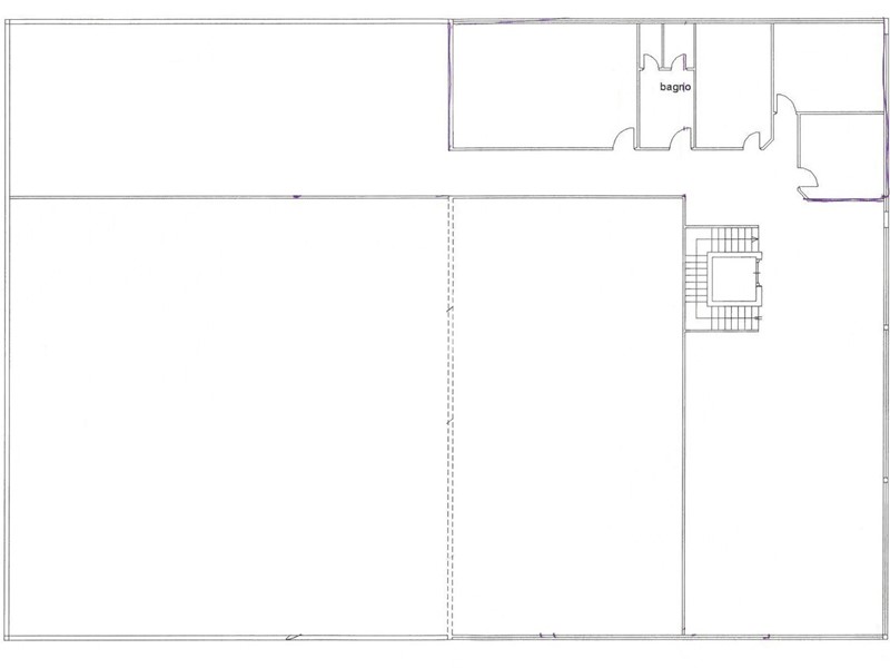
Sermoneta zona industriale, Latina Scalo/Sermoneta - In prossimità della strada statale Appia, disponiamo la vendita di un Capannone industriale di recente costruzione, di mq 1600 ca. Al piano terra la zona lavorazione e produzione è di mq 1000 ca, più 120 mq servizi e sala mostra; Al piano primo, mq 500 con uffici amministrativi, servizi e show room. Completano la proprietà mq 1700 di corte esclusiva. Parcheggi interni ed esterni. La soluzione è visionabile previo appuntamento.

Condizioni economiche

Contratto: Vendita
Prezzo: 735'000€

Informazioni principali

Tipologia: Capannone
Città: Sermoneta
Superficie: 1600 m²
N° locali: 2
N° bagni: 2
Piano: Terra

Efficenza energetica

Classe energetica:
Anno di costruzione: 2020

Dati inserzione

ID Offrocasa.com: 10693939
Data inserimento: 15/03/2025
Rif. Agenzia: Cod. rif 3217839VCG
Rif. Agenzia Cod. rif 3217839VCG

Gabetti

piazza San Giuseppe snc - Latina
0773/630676
Richiedi Info dal form:
Accetto l'Informativa Privacy


Gabetti

piazza San Giuseppe snc - Latina

Capannone in Vendita a Sermoneta, 735'000€, 1600 m²

Chiama
Contatta