Casale in Vendita a Marano Vicentino, 27'000€, 160 m²

Locali: 3
Bagni: 1
Camere: 4
Piano: Multipiano
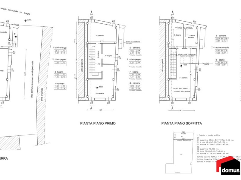
MARANO: vendesi rustico di corte, di testa, da ristrutturare con un progetto già approvato.\nL'abitazione si sviluppa su tre livelli fuori terra e dispone di metrature generose ed è dotato di ampia luminosità. Non vi è area esterna privata.\nL'immobile è agibile, urbanisticamente e catastalmente conforme allo stato di fatto.

Condizioni economiche

Contratto: Vendita
Prezzo: 27'000€

Informazioni principali

Tipologia: Casale
Città: Marano Vicentino
Superficie: 160 m²
N° locali: 3
N° bagni: 1
N° Camere: 4
Piano: Multipiano

Efficenza energetica

Classe energetica: G
Ristrutturato: Da Ristrutturare

Dati inserzione

ID Offrocasa.com: 10692192
Data inserimento: 14/03/2025
Rif. Agenzia: T125
Rif. Agenzia T125

Domus Agenzia Immobiliare

Via Zanella, 6 - Thiene (Vicenza)
0445 1887393
Richiedi Info dal form:
Accetto l'Informativa Privacy


Domus Agenzia Immobiliare

Via Zanella, 6 - Thiene (Vicenza)

Casale in Vendita a Marano Vicentino, 27'000€, 160 m²

Chiama
Contatta