Casa Indipendente in Vendita a Sannicola, 28'000€, 70 m²

Locali: 4
Bagni: 1
Camere: 1
Piano: Terra
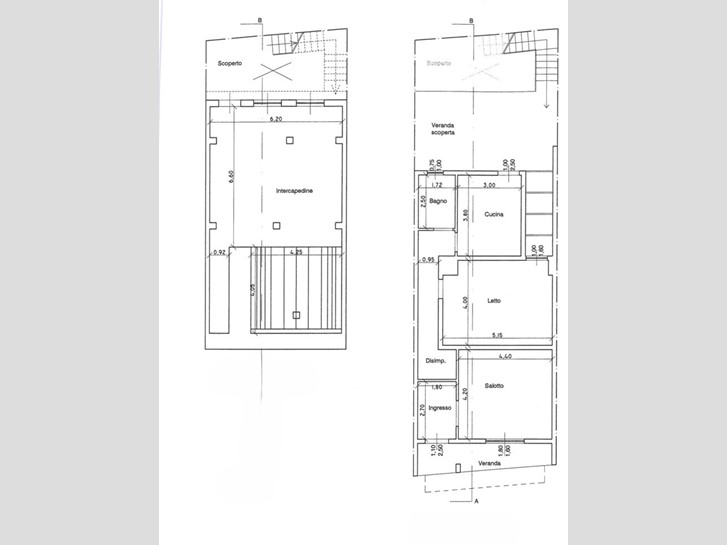
In zona centralissima, a pochi metri da Piazza della Repubblica proponiamo in vendita abitazione indipendente di circa 70 mq con area solare edificabile. Un terrazzino esterno affacciato su strada conduce all'interno dell'abitazione, dove si viene accolti da un grazioso ingresso che conduce all'ampio soggiorno, percorrendo invece, il corridoio insite una camera da letto matrimoniale, la cucina abitabile ed il servizio. Dal vano cucina è possibile raggiungere l'ampio terrazzo a livello comodo e funzionale, da cui si accede all'area solare di proprietà esclusiva che, può essere ulteriormente edificata ma, si accede anche, sempre tramite scalinata, ad una piccola porzione di giardino. Completa la proprietà la cantina di circa 50 mq. L'abitazione proposta che esige di ristrutturazione, offre un eccezionale potenziale, e la possibilità di modificare gli spazi interni per adeguarli alle proprie esigenze, potendo fare affidamento agli spazi esterni ma, anche alla possibilità di edificare in altezza. Ne consigliamo la visione! Curiosità? Sannicola è ancora oggi un paese con una economia principalmente di tipo agricolo, tuttavia grazie alla crescita del turismo salentino da qualche anno il paese è più conosciuto per la presenza di nuovi ristoranti e locali di divertimento. Fino ai primissimi anni del 1900 Sannicola era frazione di Gallipoli, quindi fino a tale data Sannicola vide la sua storia inevitabilmente legata a quella gallipolina. Le due località purtroppo hanno in comune la storia e la scarsità di documentazione relativa al periodo precedente al 1484, anno in cui la cittadina ionica venne invasa e distrutta dai veneziani. Nell'epoca bizantina dei monaci basiliani tutta la zona di Sannicola fu denominata Rodogallo, in greco significava luogo delle rose belle, dopo vi fu la distinzione in Rodogallo magno e Rodogallo parvo. Questi toponimi di origine greca insieme a quelli di Renocallo o Rinocallo si riferivano a dei villaggi medievali che sono stati completamente distrutti. In merito alla presenza dei monaci basiliani, occorre citare nelle vicinanze di Sannicola e Gallipoli le abbazie di San Mauro, San Salvatore, San Tirso, Santo Stefano de Fonte e Santa Maria de Ligiro, oltre a varie piccole chiese. Nella zona tuttora esistono contrade che conservano il nome di origine greca: Pràndico, Camastra e Meforìe. Di origni basiliane è sicuramente anche la chiesa di San Nicola, che però fu distrutta nel corso della prima metà del 1500. Quando i monaci basiliani cominciarono a decadere, lo stesso destino toccò a Gallipoli e all'agro di Sannicola. All'inizio del Trecento le popolazioni circostanti raziarono sistematicamente la cittadina ionica. Verso la fine del 1400 la situazione peggiorò a causa di turchi, veneziani e specialmente francesi. Questi ultimi trovarono validi alleati sul territorio stesso nelle figure dei feudatari di villaggi e casali vicini: quali Galatone, Galatina, Parabita, Matino, ecc. Passato questo terribile periodo storico Gallipoli in qualche modo rinacque, agli inizi del 1600 umili contadini costruirono molte case sparse, autorizzati dai grandi proprietari terrieri in cambio dei loro servizi: custodia e sfruttamento del terreno. Nel 1640 fu Domenico Musurù che fece edificare nel sito di San Nicola, sui ruderi dell'omonima chiesa e in zona non abitata, un piccolo tempio dedicato al Santo di Mira.

Condizioni economiche

Contratto: Vendita
Prezzo: 28'000€
Libero: Si

Informazioni principali

Tipologia: Casa Indipendente
Città: Sannicola
Superficie: 70 m²
N° locali: 4
N° bagni: 1
N° Camere: 1
Piano: Terra
Cucina: Abitabile

Efficenza energetica

Classe energetica:
Anno di costruzione: 0

Dati inserzione

ID Offrocasa.com: 10691873
Data inserimento: 13/03/2025
Rif. Agenzia: Cod. rif 3220052VRG
Rif. Agenzia Cod. rif 3220052VRG

Studio Santa Cristina Snc di Russo Christian & C

Corso Roma 134 - Gallipoli (Lecce)
0833262440
Richiedi Info dal form:
Accetto l'Informativa Privacy


Studio Santa Cristina Snc di Russo Christian & C

Corso Roma 134 - Gallipoli (Lecce)

Casa Indipendente in Vendita a Sannicola, 28'000€, 70 m²

Chiama
Contatta