Trilocale in Vendita a Tortoreto, 230'000€, 65 m²

Locali: 3
Bagni: 1
Camere: 2
Piano: 1°
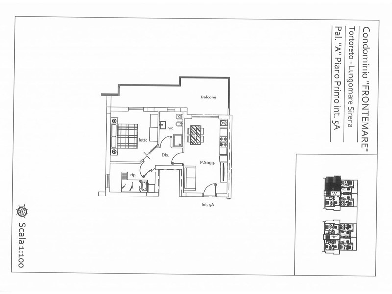
Rif.A047 TORTORETO LIDO: proponiamo in vendita appartamenti di Nuova Costruzione fronte mare con vista mozzafiato, complesso composto da 14 unità abitative. In particolare proponiamo l'appartamento sito al primo piano così suddiviso: ingresso su luminoso soggiorno living con angolo cottura, una camera matrimoniale e una cameretta, un bagno finestrato con doccia e un ampio terrazzo per godersi la vista mare e momenti di relax. Dotato di impianto fotovoltaico condominiale per un'elevata efficienza energetica, cappotto termico per un ottimo isolamento, infissi ad abbattimento acustico e termico, e un impianto di riscaldamento e raffreddamento con pompa di calore a bassi consumi energetici. Possibilità di acquistare cantine e posti auto da computare a parte. Ideale per chi cerca una soluzione abitativa confortevole e all'avanguardia, questo appartamento rappresenta un'opportunità unica nel panorama immobiliare di Tortoreto. La consegna è prevista per l'estate 2025. Contattami per organizzare una visita e scoprire tutte le potenzialità di questa meravigliosa proprietà. Ci trovate in Viale Lungomare Marconi, 80 ad Alba Adriatica. Potete contattarci ai numeri: Fisso: 0861.1864850 oppure tramite WhatsApp al 347.1498674, registrando il nostro numero potrete accedere al catalogo delle nostre migliori proposte e ricevere aggiornamenti. "Gabetti. E sei già a casa", per gli amici, per la famiglia o da condividere con la persona con cui abbiamo deciso di passare la nostra vita

Condizioni economiche

Contratto: Vendita
Prezzo: 230'000€

Informazioni principali

Tipologia: Trilocale
Città: Tortoreto
Superficie: 65 m²
N° locali: 3
N° bagni: 1
N° Camere: 2
Piano:
Cucina: Angolo Cottura

Efficenza energetica

Classe energetica:
Climatizzatore: Si
Anno di costruzione: 2024

Caratteristiche

Ascensore: Si
Videocitofono: Si

Dati inserzione

ID Offrocasa.com: 10690575
Data inserimento: 12/03/2025
Rif. Agenzia: Cod. rif A047VRG
Rif. Agenzia Cod. rif A047VRG

Gabetti

Lungomare Marconi 80 - Alba Adriatica (Teramo)
0861.1864850
Richiedi Info dal form:
Accetto l'Informativa Privacy


Condividi

Gabetti

Lungomare Marconi 80 - Alba Adriatica (Teramo)

Trilocale in Vendita a Tortoreto, 230'000€, 65 m²

Chiama
Contatta