Casa Indipendente in Vendita a Tortoreto, 230'000€, 150 m², arredato

Locali: 6
Bagni: 2
Camere: 3
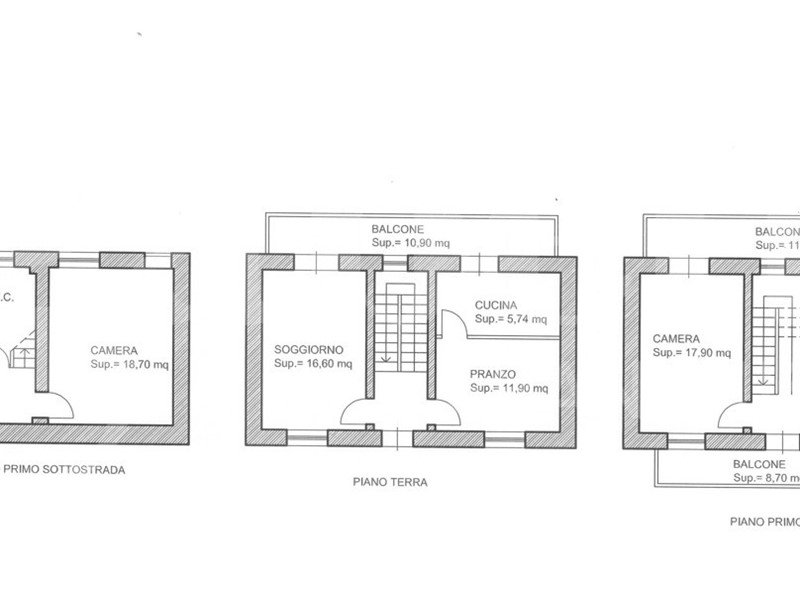
Rif. A020 TORTORETO ALTO: proponiamo in vendita Casa Singola nel centro storico di Tortoreto Alto un meraviglioso borgo medioevale, zona servita da: farmacia, poste, fermata autobus, minimarket e comune. Un'opportunità unica per chi desidera vivere in un ambiente ricco di storia e tradizione. L'immobile è così costituito: Piano terra: ingresso su disimpegno, un soggiorno con balcone esposto a sud/est , una sala pranzo, una cucina separata con balcone. Primo piamo: due camere matrimoniali, un bagno finestrato con doccia, due balconi e sottotetto grezzo. Piano S1/Terra: ingresso indipendente su soggiorno/cucina con camino, una camera matrimoniale e un bagno finestrato. Non lasciarti sfuggire l'opportunità di vivere in un ambiente unico e suggestivo come questo! Contattateci per avere maggiori informazioni o per fissare una visita. Ci trovate in Viale lungomare Marconi, 80 ad Alba Adriatica. Potete contattarci ai numeri: Fisso: 0861.1864850 oppure tramite WhatsApp al 347.1498674, registrando il nostro numero potrete accedere al catalogo delle nostre migliori proposte e ricevere aggiornamenti. "Gabetti. E sei già a casa", per gli amici, per la famiglia o da condividere con la persona con cui abbiamo deciso di passare la nostra vita.

Condizioni economiche

Contratto: Vendita
Prezzo: 230'000€
Arredato: Si

Informazioni principali

Tipologia: Casa Indipendente
Città: Tortoreto
Superficie: 150 m²
N° locali: 6
N° bagni: 2
N° Camere: 3
Cucina: Cucinotto

Efficenza energetica

Classe energetica:
Anno di costruzione: 1979

Dati inserzione

ID Offrocasa.com: 10690565
Data inserimento: 12/03/2025
Rif. Agenzia: Cod. rif A020VRG
Rif. Agenzia Cod. rif A020VRG

Gabetti

Lungomare Marconi 80 - Alba Adriatica (Teramo)
0861.1864850
Richiedi Info dal form:
Accetto l'Informativa Privacy


Gabetti

Lungomare Marconi 80 - Alba Adriatica (Teramo)

Casa Indipendente in Vendita a Tortoreto, 230'000€, 150 m², arredato

Chiama
Contatta