Trilocale in Vendita a Alba Adriatica, 135'000€, 64 m², arredato

Locali: 3
Bagni: 1
Camere: 2
Piano: 1°
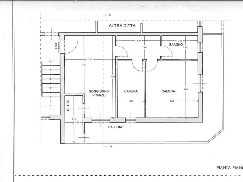
Rif.A057 ALBA ADRIATICA: proponiamo in vendita appartamento nella ricercata Villa Fiore, a 200 mt dal mare. L'immobile sito al primo piano senza ascensore è cosi composto: ingresso su soggiorno con accesso su un balcone perimetrale, un cucinino, un disimpegno divide una cameretta, una camera matrimoniale e un bagno finestrato con doccia. La posizione centrale permette di raggiungere facilmente servizi essenziali come pub, asilo, farmacia, ufficio postale e luoghi di culto, rendendo la vita quotidiana estremamente comoda e piacevole. Ideale per chi cerca un'abitazione accogliente e ben posizionata, questo appartamento rappresenta un'opportunità unica nel vivace contesto di Alba Adriatica. Completa la proprietà un posto auto e una cantina nel seminterrato. Contattaci oggi stesso per organizzare una visita e scoprire tutte le potenzialità di questa affascinante proprietà. Ci trovate in Viale lungomare Marconi, 80 ad Alba Adriatica. Potete contattarci ai numeri: Fisso: 0861.1864850 oppure tramite WhatsApp al 347.1498674, registrando il nostro numero potrete accedere al catalogo delle nostre migliori proposte e ricevere aggiornamenti. "Gabetti. E sei già a casa", per gli amici, per la famiglia o da condividere con la persona con cui abbiamo deciso di passare la nostra vita

Condizioni economiche

Contratto: Vendita
Prezzo: 135'000€
Arredato: Si
Spese condominiali: 30€

Informazioni principali

Tipologia: Trilocale
Città: Alba Adriatica
Superficie: 64 m²
N° locali: 3
N° bagni: 1
N° Camere: 2
Piano:
Posto auto: Si
Cucina: Cucinotto

Efficenza energetica

Classe energetica:
Anno di costruzione: 1978
Riscaldamento: autonomo

Caratteristiche

Cantina: Si

Dati inserzione

ID Offrocasa.com: 10690504
Data inserimento: 12/03/2025
Rif. Agenzia: Cod. rif A057VRG
Rif. Agenzia Cod. rif A057VRG

Gabetti

Lungomare Marconi 80 - Alba Adriatica (Teramo)
0861.1864850
Richiedi Info dal form:
Accetto l'Informativa Privacy


Gabetti

Lungomare Marconi 80 - Alba Adriatica (Teramo)

Trilocale in Vendita a Alba Adriatica, 135'000€, 64 m², arredato

Chiama
Contatta