Attico in Vendita a Tortoreto, 450'000€, 100 m²

Locali: 3
Bagni: 1
Camere: 2
Piano: 3°
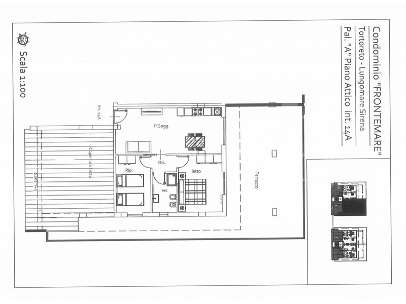
Rif. A048 TORTORETO LIDO: in vendita a Tortoreto (TE), in una nuova costruzione con consegna prevista per l'estate del 2025, si trova un esclusivo appartamento/attico ad uso abitativo con vista mare fronte mare. Situato al terzo ed ultimo piano di un complesso residenziale di 14 unità abitative, questo immobile di 100 mq offre un'esperienza di vita unica. L'appartamento dispone di una spaziosa zona giorno con cucina a vista, due camere da letto, un bagno finestrato con doccia e un ampio terrazzo di oltre 70 mq esposto ad est, da cui si può godere di una vista mozzafiato sul mare e sul litorale. Le caratteristiche principali dell'edificio includono una costruzione di alta qualità, impianto fotovoltaico condominiale, cappotto termico per l'isolamento, infissi ad abbattimento acustico e termico, e un efficiente impianto di riscaldamento e raffreddamento con pompa di calore a bassi consumi energetici. Inoltre, è possibile acquistare un box auto, una cantina e posti auto. La posizione strategica vicino a fast food, ristoranti e stazione di ricarica rende questo immobile ancora più allettante per chi cerca comfort e comodità. Non lasciarti sfuggire l'opportunità di vivere in un ambiente di lusso e relax a due passi dal mare. Contattaci per maggiori informazioni e per prenotare una visita. Ci trovate in Viale Lungomare Marconi, 80 ad Alba Adriatica. Potete contattarci ai numeri: Fisso: 0861.1864850 oppure tramite WhatsApp al 347.1498674, registrando il nostro numero potrete accedere al catalogo delle nostre migliori proposte e ricevere aggiornamenti. "Gabetti. E sei già a casa", per gli amici, per la famiglia o da condividere con la persona con cui abbiamo deciso di passare la nostra vita.

Condizioni economiche

Contratto: Vendita
Prezzo: 450'000€

Informazioni principali

Tipologia: Attico
Città: Tortoreto
Superficie: 100 m²
N° locali: 3
N° bagni: 1
N° Camere: 2
Piano:
Cucina: Angolo Cottura

Efficenza energetica

Classe energetica:
Climatizzatore: Si
Anno di costruzione: 2024

Caratteristiche

Ascensore: Si
Videocitofono: Si

Dati inserzione

ID Offrocasa.com: 10690499
Data inserimento: 12/03/2025
Rif. Agenzia: Cod. rif A048VRG
Rif. Agenzia Cod. rif A048VRG

Gabetti

Lungomare Marconi 80 - Alba Adriatica (Teramo)
0861.1864850
Richiedi Info dal form:
Accetto l'Informativa Privacy


Condividi

Gabetti

Lungomare Marconi 80 - Alba Adriatica (Teramo)

Attico in Vendita a Tortoreto, 450'000€, 100 m²

Chiama
Contatta