Appartamento in Vendita a Cascina, 295'000€, 152 m²

Locali: 6
Bagni: 2
Camere: 3
Piano: 1°
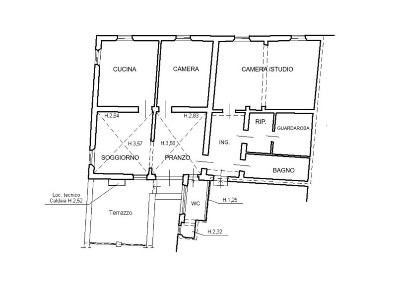
All'interno di un antico convento risalente al Quattrocento, ubicato nel centro storico di Cascina, proponiamo in vendita un ampio appartamento situato al primo piano che si estende su una superficie complessiva di 152 mq. L'appartamento, presenta una distribuzione funzionale degli spazi, ed è così composto: ingresso tradizionale, dal quale si accede a uno ampio studio con doppia finestra, facilmente trasformabile in due camere, a un doppio vano ciascuno adibito a guardaroba e a comodo ripostiglio, a un bagno dotato di vasca e sistema di aerazione forzata. Dall'ingresso si entra nel doppio soggiorno, diviso fra zona pranzo e zona relax, che funge da fulcro della casa. Dal soggiorno si raggiungono un bagno di servizio finestrato, la cucina abitabile, la camera matrimoniale e una generosa terrazza, che offre una vista incantevole sul centro storico. L'immobile si presenta in ottimo stato, grazie a una ristrutturazione completa effettuata nel 2021. I soffitti a volta della zona giorno, sono stati sabbiati e riportati al loro splendore originario, mentre le porte interne sono state restaurate conservando le loro caratteristiche peculiari.Tutti gli impianti sono certificati (classe energetica C). L'impianto di riscaldamento - a pavimento - e di condizionamento sono entrambi della nota azienda tedesca Viessmann. Gli Infissi, restaurati e dotati di vetrocamera per garantire isolamento termico e acustico, presentano tutti zanzariere. In cucina è presente un impianto a osmosi per la produzione di acqua potabile. La posizione dell'abitazione, con doppia esposizione, garantisce un'ottima luminosità e una piacevole ariosità, oltre a consentire di godere della vivacità e delle opportunità di svago offerte nel centro storico. A corredo dell'appartamento una comoda cantinetta di 12 mq, al piano terra.

Condizioni economiche

Contratto: Vendita
Prezzo: 295'000€
Spese condominiali: compresa acqua

Informazioni principali

Tipologia: Appartamento
Città: Cascina
Superficie: 152 m²
N° locali: 6
N° bagni: 2
N° Camere: 3
Piano:

Efficenza energetica

Classe energetica: C
Ipe: 59,26 kwm2
Ristrutturato: si

Dati inserzione

ID Offrocasa.com: 10681290
Data inserimento: 03/03/2025
Rif. Agenzia: 1312127/1338/AP/111
Rif. Agenzia 1312127/1338/AP/111

PONTE D'ORO Immobiliare

Via Via Cisanello,, 38 - Pisa
3471098764
Richiedi Info dal form:
Accetto l'Informativa Privacy


PONTE D'ORO Immobiliare

Via Via Cisanello,, 38 - Pisa

Appartamento in Vendita a Cascina, 295'000€, 152 m²

Chiama
Contatta