Immobile commerciale in Affitto a Anagni, 650€,

Locali: 10+
Piano: t
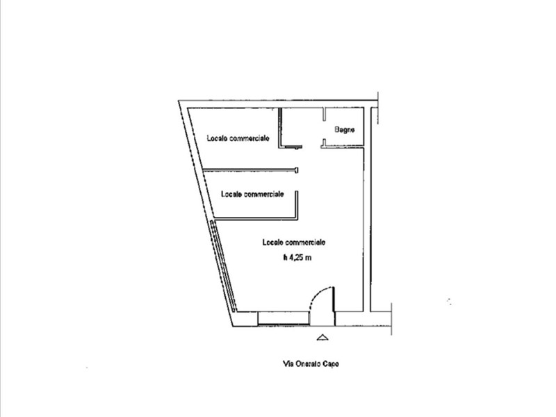
POSIZIONE Anagni, in prossimità del presidio ospedaliero, su arteria principale che immette al centro storico del paese. Nelle immediate vicinanze vi è la possibilità di usufruire del parcheggio multipiano San Giorgetto. Area parcheggio a pagamento, oltre posti auto per disabili, nell'area antistante il locale. DESCRIZIONE Locale commerciale posto al piano terra di c.a. 65 mq, servito da vetrina con ingresso fronte strada. La soluzione è composta da tre ambienti commerciali, antibagno e bagno. La proprietà ha un'altezza interna effettiva di 4,25 mt, attualmente controsoffitta in cartongesso. STATO E FINITURE Il locale è stato recentemente ristrutturato, con impianti di nuova generazione con certificazioni e agibilità. Il locale è servito da serranda elettrica. Gli ambienti risultano climatizzati. UTILIZZO E POTENZIALITA' Per coloro che necessitano di ulteriori metri, potrebbe essere annesso il locale attiguo di c.a. 60 mq (canone da concordare). * Le presenti informazioni non costituiscono elemento contrattuale, dovranno essere verificate in ogni caso. Per tutte le soluzioni in affitto, potete visitare il nostro sito www.gruppoempireimmobiliare.it

Condizioni economiche

Contratto: Affitto
Prezzo: 650€
Arredato: No

Informazioni principali

Tipologia: Immobile commerciale
Città: Anagni
N° locali: 10+
Piano: t

Efficenza energetica

Classe energetica: G
Ipe: 268 KWh/m2a
Anno di costruzione: 0
Condizioni stabile: Buono

Dati inserzione

ID Offrocasa.com: 10677999
Data inserimento: 27/02/2025
Rif. Agenzia: 201-432
Rif. Agenzia 201-432

Gruppo Empire Italia srl

Via Giovanni Giminiani 17/O - Anagni (Frosinone)
Richiedi Info dal form:
Accetto l'Informativa Privacy


Gruppo Empire Italia srl

Via Giovanni Giminiani 17/O - Anagni (Frosinone)

Immobile commerciale in Affitto a Anagni, 650€,

Contatta