Trilocale in Vendita a Mariano Comense, 107'000€, 85 m²

Locali: 3
Bagni: 1
Piano: 1°
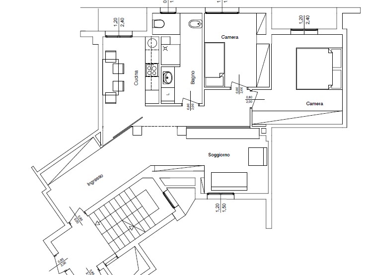
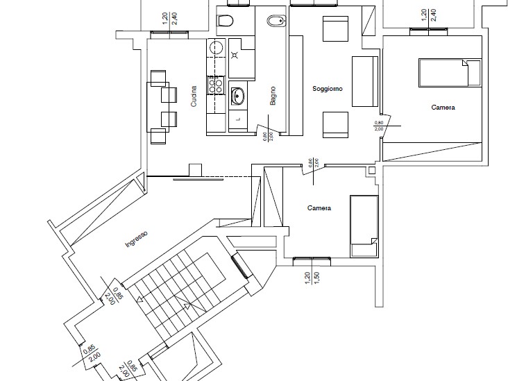
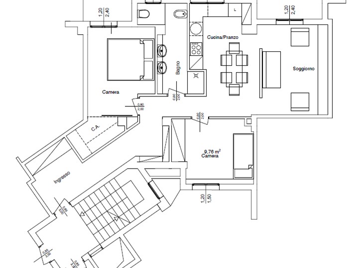
STUDIO/UFFICIO IN CENTRO CON CANTINA Mariano Comense: nel centro cittadino a soli 100 metri dalla stazione ferroviaria, perfetto per chi cerca comodità e accessibilità. proponiamo in vendita un ampio studio di 85 mq posto al piano primo servito da ascensore in condominio anni '70 il quale è stato totalmente ristrutturato con superbonus del 110% nel 2023. L'ingresso si apre su una spaziosa hall che conduce a un ampio disimpegno, ideale per accogliere clienti o collaboratori. L'ufficio comprende due sale luminose e un locale più ampio, perfetto per riunioni o come open space. Completa la proprietà un bagno funzionale e due balconi che offrono un piacevole spazio esterno. Le buone condizioni interne e la possibilità di cambiare destinazione d'uso ad abitazione rendono questo immobile un'opportunità versatile. Cantina compresa nel prezzo. PRATICA DI CAMBIO DESTINAZIONE D'USO A CARICO DEL VENDITORE

Condizioni economiche

Contratto: Vendita
Prezzo: 107'000€

Informazioni principali

Tipologia: Trilocale
Città: Mariano Comense
Superficie: 85 m²
N° locali: 3
N° bagni: 1
Piano:

Efficenza energetica

Classe energetica: F
Ipe: 0.00 kwm2
Anno di costruzione: 0

Dati inserzione

ID Offrocasa.com: 10675501
Data inserimento: 23/02/2025
Rif. Agenzia: 107VRG
Rif. Agenzia 107VRG

Gabetti

piazza roma 53 - Mariano Comense (Como)
031/743758
Richiedi Info dal form:
Accetto l'Informativa Privacy


Condividi

Gabetti

piazza roma 53 - Mariano Comense (Como)

Trilocale in Vendita a Mariano Comense, 107'000€, 85 m²

Chiama
Contatta