Villetta a schiera in Vendita a Montopoli in Val d'Arno, 370'000€, 160 m², con Box

Locali: 5
Bagni: 3
Camere: 3
Piano: su più livelli
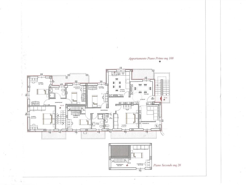
Montopoli in val d'Arno, posizione collinare, panoramica, villetta terra tetto angolare, in fabbricato di tre unità, nuova costruzione in fase di ultimazione, libera sui tre lati, composta al piano terra da ampio giardino, ingresso, soggiorno, pranzo, cucina e bagno; al piano primo da tre camere, bagno e due terrazzi; al piano seminterrato da garage, w.c. e cantina. Possibilità di personalizzare le rifiniture.

Condizioni economiche

Contratto: Vendita
Prezzo: 370'000€

Informazioni principali

Tipologia: Villetta a schiera
Città: Montopoli in Val d'Arno
Superficie: 160 m²
N° locali: 5
N° bagni: 3
N° Camere: 3
Piano: su più livelli
Box: si
Giardino: privato

Efficenza energetica

Classe energetica: In attesa di certificazione

Dati inserzione

ID Offrocasa.com: 10674572
Data inserimento: 22/02/2025
Rif. Agenzia: 1310618/169/1391
Rif. Agenzia 1310618/169/1391

LE FONTI - Ag. Immobiliare

Via via Nazionale , Capanne, 108 - Montopoli in Val d'Arno (Pisa)
0571467710
Richiedi Info dal form:
Accetto l'Informativa Privacy


LE FONTI - Ag. Immobiliare

Via via Nazionale , Capanne, 108 - Montopoli in Val d'Arno (Pisa)

Villetta a schiera in Vendita a Montopoli in Val d'Arno, 370'000€, 160 m², con Box

Chiama
Contatta