Casa Indipendente in Vendita a Roma, 699'000€, 300 m², con Box

Locali: 8
Camere: 4
Piano: t
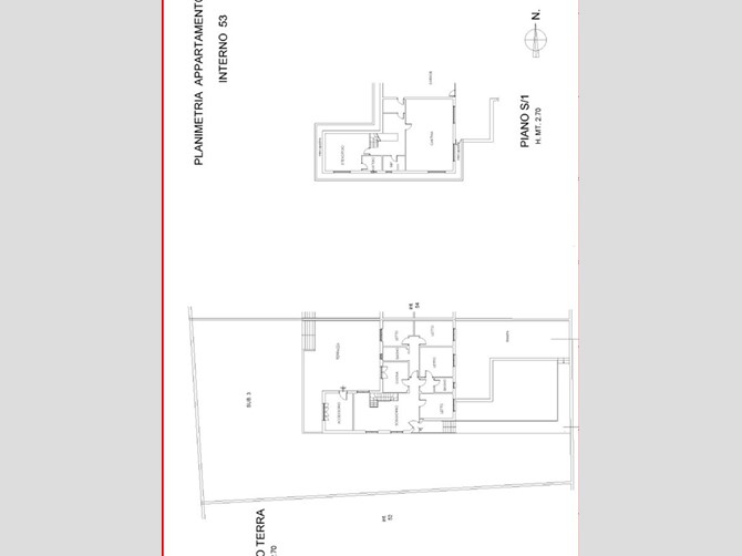
VALLERANO - villa angolare capotesta di circa 300 mq con grande giardino curatissimo di circa 800 mq libero su tre lati. L'immobile è così suddiviso: al piano terra rialzato grande salone di circa 60 mq con camino, cucina abitabile, 4 camere da letto e doppi servizi entrambi con finestra, grande patio di circa 100 mq con accesso dal salone e dalla cucina. Sala hobby attrezzata di circa 120 mq e garage di 38 mq. La villa è rifinita ed in perfette condizioni, libera su tre lati e con vista sui Castelli Romani. Persiane blindate, caldaia a condensazione ed infissi in doppio vetro e legno. NOTA BENE: TUTTE E QUATTRO LE CAMERE DA LETTO SI TROVANO AL PIANO TERRA RIALZATO. PREZZO € 699.000,00. Per info ed appuntamenti Ag. Imm. Intereur Casa 335/311498 - 06/52370686

Condizioni economiche

Contratto: Vendita
Prezzo: 699'000€
Arredato: No

Informazioni principali

Tipologia: Casa Indipendente
Città: Roma
Superficie: 300 m²
N° locali: 8
N° Camere: 4
Piano: t
Box: Si
Cucina: Abitabile
Giardino: Si

Efficenza energetica

Classe energetica: D
Anno di costruzione: 2005
Condizioni stabile: Vendite da privato

Dati inserzione

ID Offrocasa.com: 10671519
Data inserimento: 19/02/2025
Rif. Agenzia: VillaVallerano
Rif. Agenzia VillaVallerano

Intereur Casa Srl

Via Giuseppe Lucchetti Rossi 44 - Roma (RM)
06.52370686
Richiedi Info dal form:
Accetto l'Informativa Privacy


Intereur Casa Srl

Via Giuseppe Lucchetti Rossi 44 - Roma (RM)

Casa Indipendente in Vendita a Roma, 699'000€, 300 m², con Box

Chiama
Contatta