Casa Semi Indipendente in Vendita a Folignano, 270'000€, 169 m²

Locali: 4
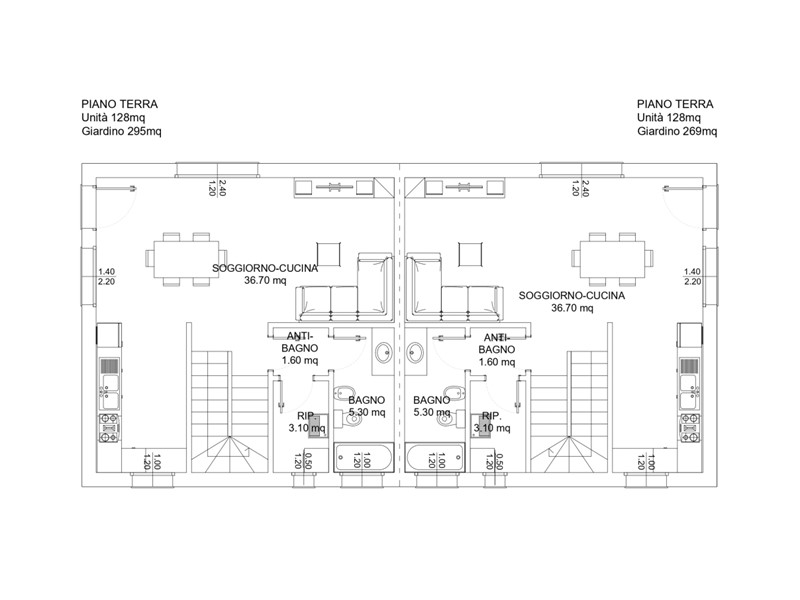
VIA CUNEO - VILLA PIGNA | FOLIGNANO Proponiamo in vendita villino bifamiliare con giardino privato, garage e rustico in bio edilizia di nuova costruzione. Il progetto originale prevede che l'abitazione sia composta da tre livelli così suddivisi: Al piano seminterrato è presente l'ingresso al garage più rustico. Al piano terra, ingresso su soggiorno con cucina a vista e bagno con box doccia e finestra. Al piano primo, una camera da letto matrimoniale, due camere singole, un bagno con box doccia, due balconi. Completano la proprietà un giardino e un box auto al piano terra. Tutti i piani sono collegati da scala interna e la divisione degli ambienti è personalizzabile a piacimento. Si specifica che la costruzione sarà interamente in bioedilizia, ovvero presenterà struttura portante in cemento armato, tamponatura in canapa, tetto e solai in legno e risulterà energeticamente autosufficiente grazie all'installazione dell'impianto fotovoltaico (non è dunque previsto l'allaccio del gas). La richiesta complessiva per il villino CHIAVI IN MANO, incluso il costo del terreno edificabile e degli oneri tecnici e di urbanizzazione, è di Eu. 270.000. Soluzione in zona centrale e immersa nel verde. RIEPILOGO METRATURE: 64 MQ OGNI PIANO, GIARDINO 270 MQ

Condizioni economiche

Contratto: Vendita
Prezzo: 270'000€
Arredato: No

Informazioni principali

Tipologia: Casa Semi Indipendente
Città: Folignano
Superficie: 169 m²
N° locali: 4

Efficenza energetica

Classe energetica:
Anno di costruzione: 0

Dati inserzione

ID Offrocasa.com: 10671370
Data inserimento: 19/02/2025
Rif. Agenzia: 2391
Rif. Agenzia 2391

Centro Servizi Immobiliari

Via F.Turati, 70 - San Benedetto del Tronto (AP)
392.9812597
Richiedi Info dal form:
Accetto l'Informativa Privacy


Centro Servizi Immobiliari

Via F.Turati, 70 - San Benedetto del Tronto (AP)

Casa Semi Indipendente in Vendita a Folignano, 270'000€, 169 m²

Chiama
Contatta