Casa Semi Indipendente in Vendita a Colonnella, 280'000€, 169 m²

Locali: 6
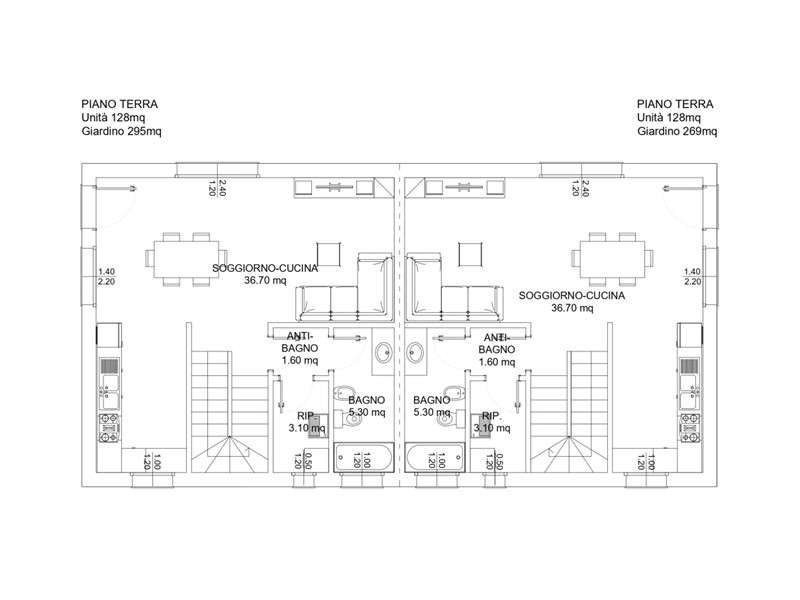
Colonnella- Rio Moro Proponiamo in vendita villino bifamiliare con giardino privato, garage e rustico in bio edilizia di nuova costruzione. Il progetto originale prevede che l'abitazione sia composta da tre livelli così suddivisi: Al piano seminterrato è presente l'ingresso al garage più rustico. Al piano terra, ingresso su soggiorno con cucina a vista e bagno con box doccia e finestra. Al piano primo, due camera da letto matrimoniale, una cameretta studio, un bagno con box doccia, due balconi. Completano la proprietà un giardino e un box auto al piano terra. Tutti i piani sono collegati da scala interna e la divisione degli ambienti è personalizzabile a piacimento. Si specifica che la costruzione sarà interamente in bio edilizia, ovvero presenterà struttura portante in cemento armato, tamponatura in canapa, tetto e solai in legno e risulterà energeticamente autosufficiente grazie all'installazione dell'impianto fotovoltaico (non è dunque previsto l'allaccio del gas). La richiesta complessiva per il villino CHIAVI IN MANO, incluso il costo del terreno edificabile e degli oneri tecnici e di urbanizzazione, è di Eu. 280.000. Soluzione in zona ben collegata e immersa nel verde. RIEPILOGO METRATURE: 64 MQ OGNI PIANO, GIARDINO 450 MQ

Condizioni economiche

Contratto: Vendita
Prezzo: 280'000€
Arredato: No

Informazioni principali

Tipologia: Casa Semi Indipendente
Città: Colonnella
Superficie: 169 m²
N° locali: 6

Efficenza energetica

Classe energetica:
Anno di costruzione: 0

Dati inserzione

ID Offrocasa.com: 10668056
Data inserimento: 14/02/2025
Rif. Agenzia: 2392
Rif. Agenzia 2392

Centro Servizi Immobiliari

Via F.Turati, 70 - San Benedetto del Tronto (AP)
392.9812597
Richiedi Info dal form:
Accetto l'Informativa Privacy


Centro Servizi Immobiliari

Via F.Turati, 70 - San Benedetto del Tronto (AP)

Casa Semi Indipendente in Vendita a Colonnella, 280'000€, 169 m²

Chiama
Contatta