Ufficio in Affitto a Cascina, 1'300€, 127 m²
        
    
        
    
        
    
    
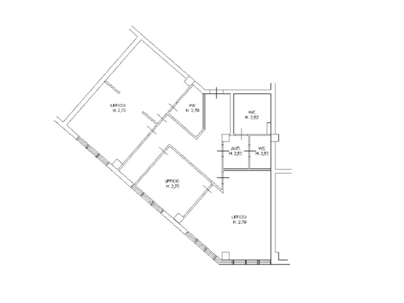
        Prestigioso ufficio con ampia visibilità dall'uscita della FI-PI-LI posto al primo piano con ascensore. L'ufficio è composto da un'ingresso e da quattro uffici separati e tre bagni. Grandi finestre garantiscono grande luminosità. Ampio parcheggio e impiantistica di prim'ordine. euro 1300/mese
	
    
    
    
        
        
            Condizioni economiche
            
                Contratto: Affitto
            
            
                Prezzo: 1'300€
            
            
                
                    Prezzo trattabile: si
                
            
         
        
            Informazioni principali
            
                Tipologia: Ufficio
            
            
                Città: Cascina
            
            
                
                    Superficie: 127 m²
                
            
                
                    N° locali: 5
                
            
                
                    Piano: 1°
                
            
         
        
            Efficenza energetica
            
                Classe energetica: E
            
            
                
                    Ipe: 80,00 kwm2
                
            
                
                    Ristrutturato: si
                
            
		 
        
                
                    Caratteristiche
                    
                        
                            Ascensore: si
                        
                    
                 
            
            
                Dati inserzione
                
                    ID Offrocasa.com: 10666566
                
                
                
                    Data inserimento: 13/02/2025
                
                
                    
                        Rif. Agenzia: 1305427/26/U14a
                    
                
             
        
	 
    
    
        
Ufficio in Affitto a Cascina, 1'300€, 127 m²