Trilocale in Vendita a Latina, 207'000€, 72 m²

Locali: 3
Bagni: 2
Camere: 2
Piano: piano terra
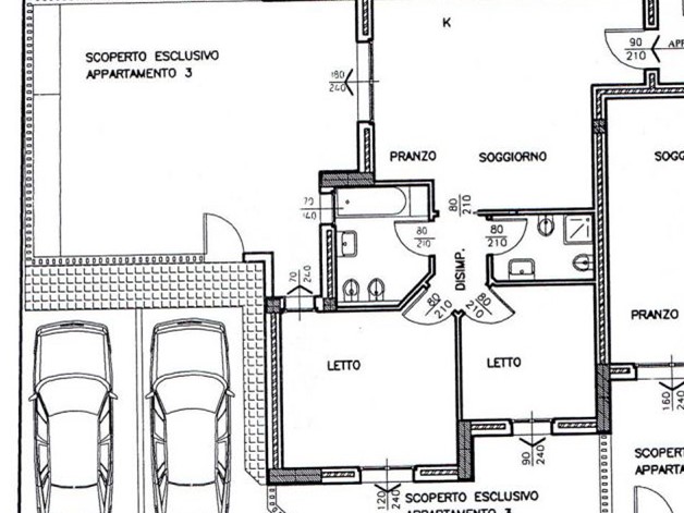
Trilocale in via Bradano, 1, Europa-Italia, Latina Vendesi appartamento di recente costruzione al piano terra, dotato di corte esterna privata, situato in Via Bradano, Latina. L'immobile si compone di un ampio soggiorno con angolo cottura, disimpegno, due camere da letto (una matrimoniale e una singola) con pavimentazione in parquet di rovere. Completano la proprietà un bagno finestrato, spazioso e luminoso, e un secondo bagno. L'ampio cortile esterno, pavimentato, offre uno spazio ideale per godere di momenti all'aperto. Inclusi nel prezzo, un box auto di 50 mq e un posto auto privato. L'edificio si trova in una posizione strategica, circondato da tutti i principali servizi: scuole, centri commerciali, uffici comunali, farmacia e altri punti di interesse. La sicurezza è assicurata da un moderno sistema di videosorveglianza, che garantisce riservatezza e tranquillità. Questo appartamento rappresenta una soluzione abitativa moderna e funzionale, dotata di spazi esterni privati, grande box auto spazioso, posto auto, in una zona ben collegata e servita. Contattaci subito per prenotare un appuntamento!

Condizioni economiche

Contratto: Vendita
Prezzo: 207'000€

Informazioni principali

Tipologia: Trilocale
Città: Latina
Superficie: 72 m²
N° locali: 3
N° bagni: 2
N° Camere: 2
Piano: piano terra
Posto auto: 1

Efficenza energetica

Classe energetica: In attesa di certificazione
Anno di costruzione: 2013
Ristrutturato: si

Caratteristiche

Ascensore: si
Videocitofono: si

Dati inserzione

ID Offrocasa.com: 10665497
Data inserimento: 12/02/2025
Rif. Agenzia: 1304874/2024/A4
Rif. Agenzia 1304874/2024/A4

Agora Immobiliare

Viale Viale Kennedy,, 143 - Latina
3331669838
Richiedi Info dal form:
Accetto l'Informativa Privacy


Agora Immobiliare

Viale Viale Kennedy,, 143 - Latina

Trilocale in Vendita a Latina, 207'000€, 72 m²

Chiama
Contatta