Attività commerciale in Vendita a Imperia, zona Poggi, 178'000€, 280 m²

Locali: 8
Camere: 4
Piano: t
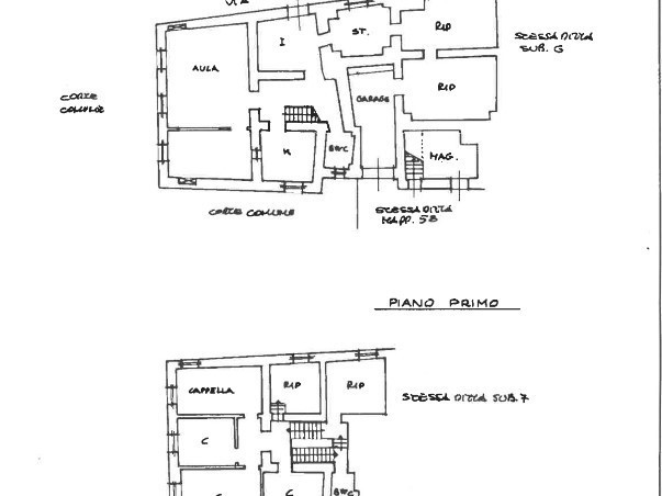
Fabbricato ex Asilo Infantile e terreni - Il Prezzo visualizzato è la Base d'Asta in quanto l’immobile è oggetto di esecuzione immobiliare venduto tramite Asta Giudiziaria. - L'immobile aggiudicato, viene venduto libero e sgombro da persone cose ed ipoteche nello stato di fatto e di diritto in cui si trova. - Non rappresentiamo il Tribunale, ma lavoriamo nell'esclusivo interesse del potenziale acquirente per garantire un acquisto sicuro. - I consulenti di ASTE ITALIA ti assisteranno in tutte le attività dell'iter giudiziario dalla visita dell'immobile fino alla consegna chiavi. - Contatta il nostro Servizio Clienti , i nostri operatori sono a disposizione per chiarire i molteplici dubbi per partecipare alle ASTE.

Condizioni economiche

Contratto: Vendita
Prezzo: 178'000€
Arredato: No

Informazioni principali

Tipologia: Attività commerciale
Città: Imperia
Zona: Poggi
Superficie: 280 m²
N° locali: 8
N° Camere: 4
Piano: t
Cucina: Abitabile

Efficenza energetica

Classe energetica: G
Anno di costruzione: 0
Condizioni stabile: Discreto
Riscaldamento: Autonomo

Dati inserzione

ID Offrocasa.com: 10660590
Data inserimento: 07/02/2025
Rif. Agenzia: GE10002/20L3-2407-24-1530
Rif. Agenzia GE10002/20L3-2407-24-1530

Domy Online S.r.l.

Via San Lorenzo 5/41 - Genova
010.8935187
Richiedi Info dal form:
Accetto l'Informativa Privacy


Domy Online S.r.l.

Via San Lorenzo 5/41 - Genova

Attività commerciale in Vendita a Imperia, zona Poggi, 178'000€, 280 m²

Chiama
Contatta